Zurück

Historisches Fabrikgebäude mit modernen Loftflächen und Dachterrasse in Friedrichshain

Schreibfederhöfe

Adresse
Schreibfederhöfe
Boxhagener Straße 76 - 78
10245 Berlin
Friedrichshain-Kreuzberg

Verfügbar ab
Sofort


Fläche
bis 617 m2

Teilbar ab m2
ab 347 m2


Mietpreis ab m2
ab 27,00 €

Provision
Provisionsfrei


Ausstattung

  • STELLPLÄTZE: Fahrradstellplätze vorhanden, PKW-Stellplätze auf Anfrage
  • BESONDERHEITEN: bodentiefe Fenster, interne Verbindungstreppe innerhalb der Fläche

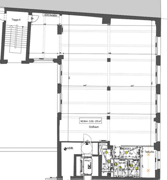
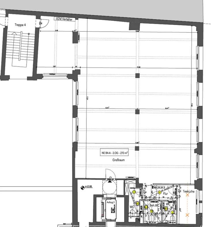
Grundrisse


Anbindung

Tram
200 m
Bus
200 m
S-Bahn
550 m
Regionalverkehr
550 m
Fernverkehr
550 m
Flughafen-Express
550 m
Flughafen-BER
20,4 km

Karte

Ansprechpartner

Renée Neumann
Real Estate Consultant

Tel.: +49 (0)30 600 31 55 - 01
E-Mail.:

Exposé anfragen

Wir speichern Ihre Daten zur Bearbeitung Ihrer Anfrage. Weitere Informationen erhalten Sie in unserer Datenschutzerklärung.



In der Nähe