Büro- und Produktionsflächen in einem campustypischen Gebäudeensemble

Adresse
Techno Campus Berlin
Siemensdamm 59 - 63
13627 Berlin
Spandau
Verfügbar ab
Sofort
Fläche
bis 4.860 m2
Teilbar ab m2
ab 1.000 m2
Mietpreis ab m2
ab
Provision
Provisionsfrei
Ausstattung
- STELLPLÄTZE: Parkflächenmanagement, Car Sharing und Mobility Hub
- KLIMATISIERUNG: Kühlung vorhanden, Unterflurkonvektoren
- BESONDERHEITEN: Raumhöhe 3,80 m, Kantine im EG, großzügigen Freiflächen, - Pförtnerhaus und Sicherheitsdienst 24/7 Service, Duschen; Umkleiden, Relax- and Sportsarea im Freien (TraceSpace), Kniesolution Health, Movement (Physiotherapie und Sport)
- EDV: Hohlraumboden, Wired Score Zertifizierung, Campus App
- ZERTIFIZIERUNG: DGNB Platin
- ESG|NACHHALTIGKEIT: Logistik Hub für nachhaltige Paketzustellung, sehr gute Ökobilanz, Photovoltaik
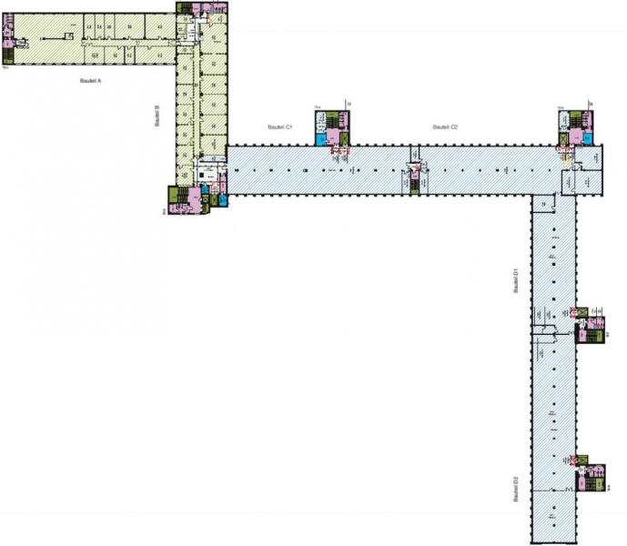
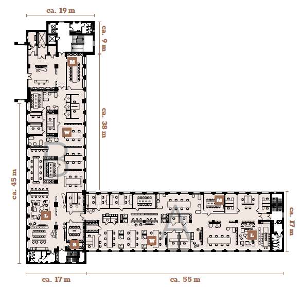
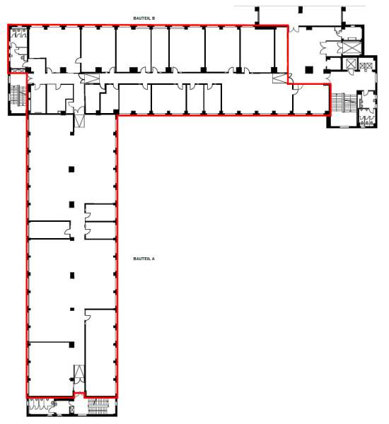
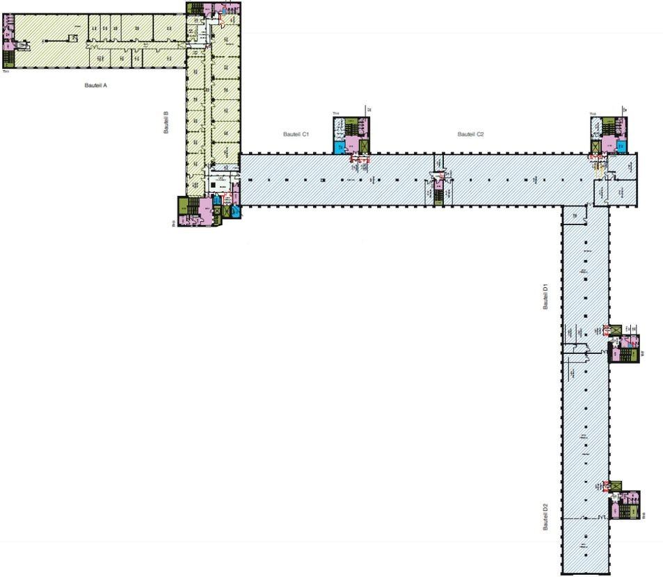
Grundrisse
Anbindung
34,8 km
6,2 km
750 m
1,8 km
Karte