Sanierte Bürofläche "Spreespeicher" nahe Oberbaumbrücke

Adresse
Getreidespeicher - Spreespeicher - Stralauer Two
Stralauer Allee 2
10245 Berlin
Friedrichshain-Kreuzberg
Verfügbar ab
Sofort
Fläche
bis 7.118 m2
Teilbar ab m2
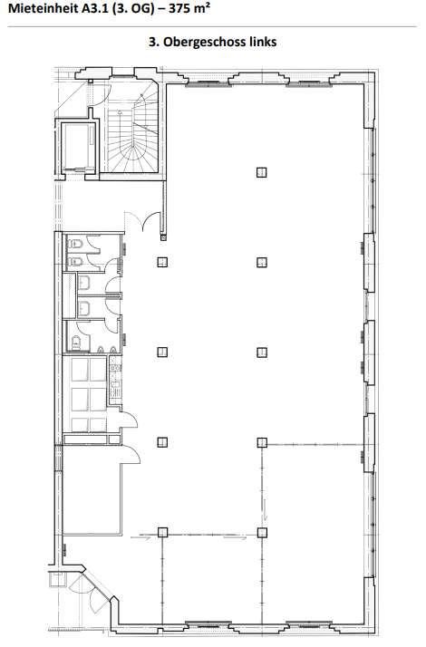
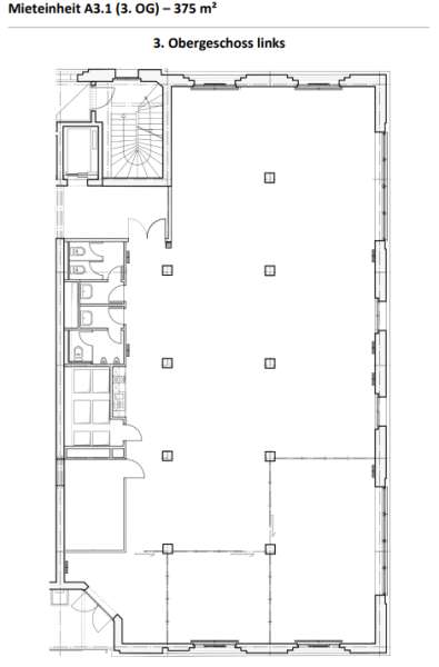
ab 375 m2
Mietpreis ab m2
ab
Provision
Provisionsfrei
Ausstattung
- EDV: Glasfaserverkabelung
- ZERTIFIZIERUNG: WiredScore, Aktuell BREEAM „Very Good“ BREEAM „Excellent“ in Arbeit
- KLIMATISIERUNG: Neue und energieeffiziente zentrale Kälteanlage, mechanische Be- und Entlüftung
- ESG|NACHHALTIGKEIT: Fernwärme mit extrem niedrigen spezifischen CO2-Faktoren
- BALKON/TERRASSE: Bepflanzte Terrassenflächen
- bis 6 m
- WASSERBLICK
- STELLPLÄTZE: TG-Stellplätze sind vorhanden + E-Ladesäulen
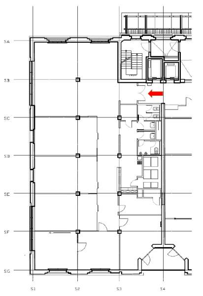
Grundrisse
Anbindung
21,1 km
1,4 km
450 m
450 m
1,4 km
1,4 km
Karte