Admiralspalast: Berlins historisches Juwel vereint Kultur und modernes Büroleben in der Friedrichstraße

Adresse
Admiralspalast
Friedrichstraße 101 - 102
10117 Berlin
Mitte
Verfügbar ab
Sofort
Fläche
bis 4.573 m2
Teilbar ab m2
ab 469 m2
Mietpreis ab m2
ab
Provision
Provisionsfrei
Ausstattung
- EDV: CAT 7
- BALKON/TERRASSE: Dachterrasse und Balkone vorhanden
- KLIMATISIERUNG: vorhanden im Neubau
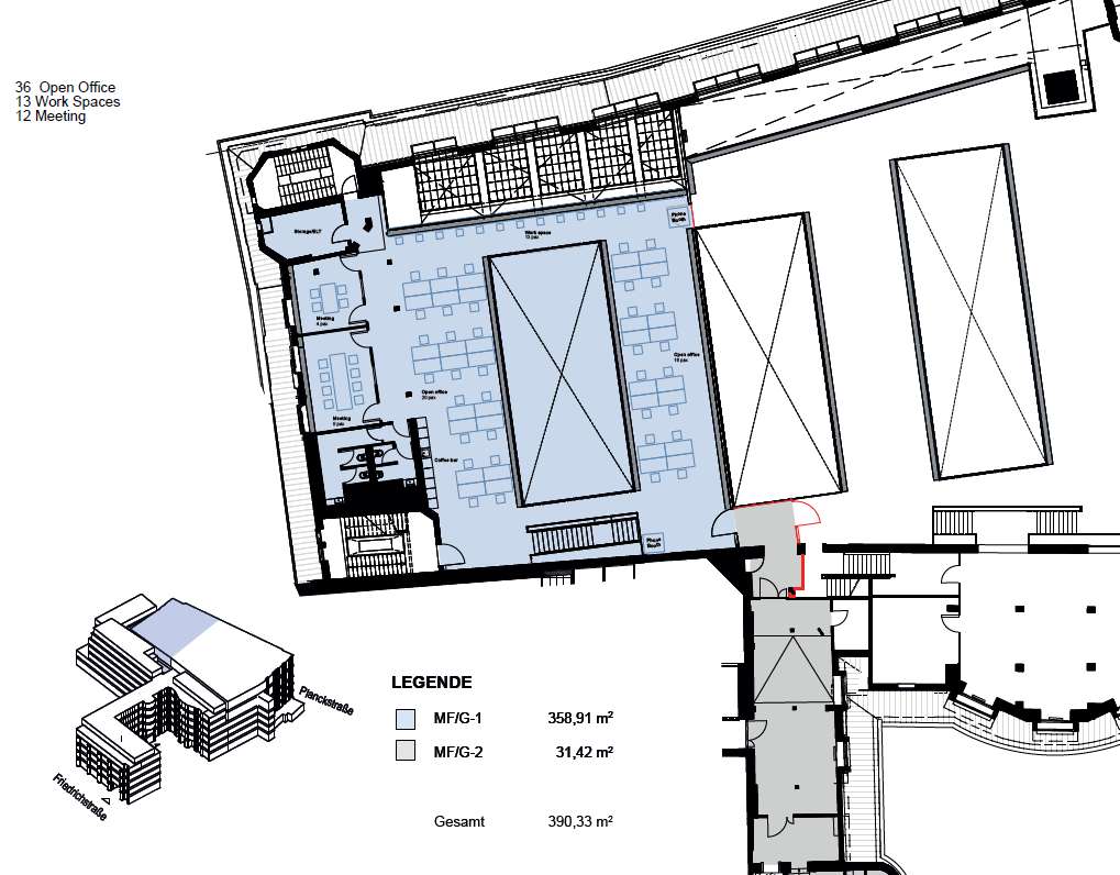
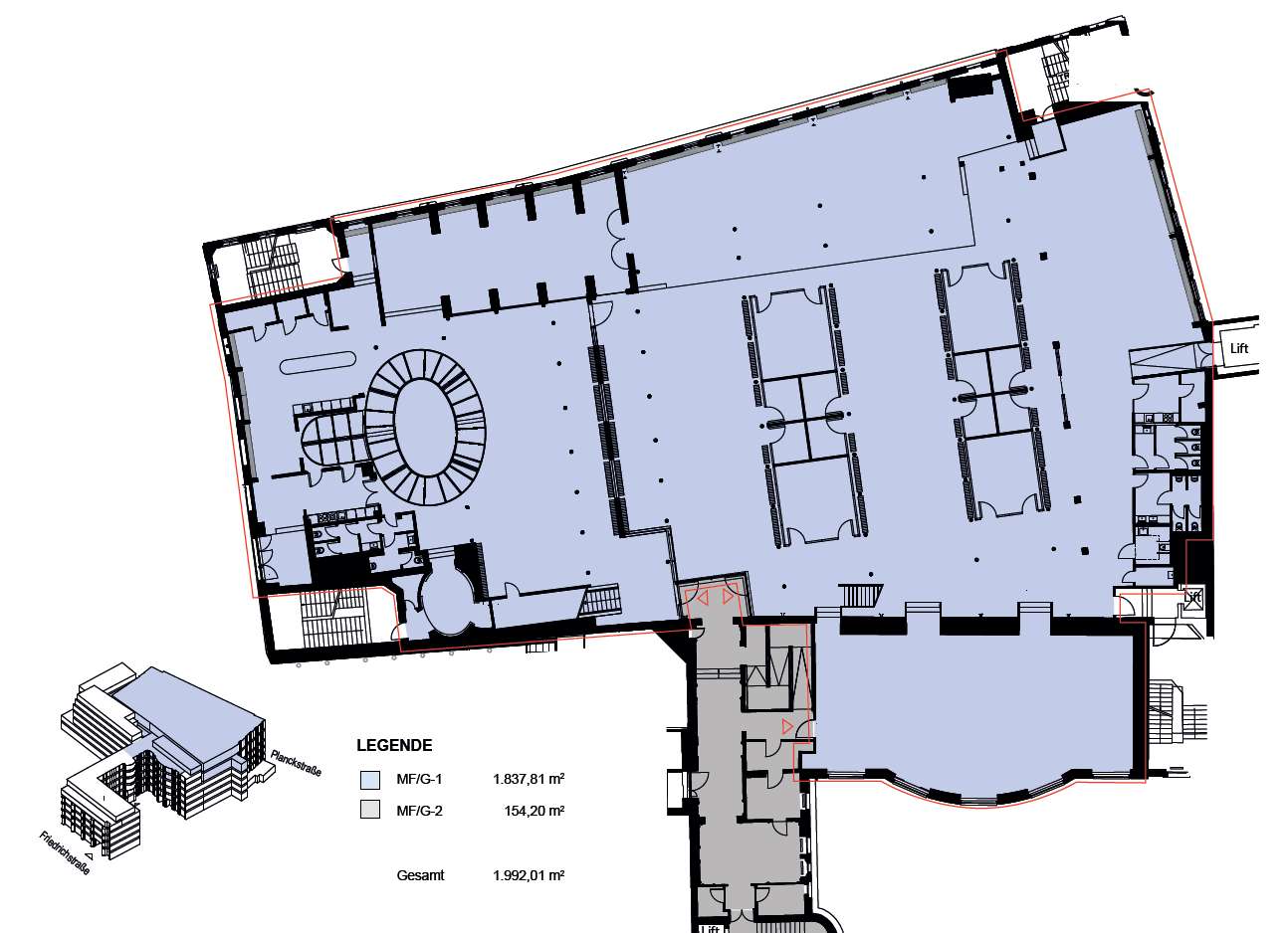
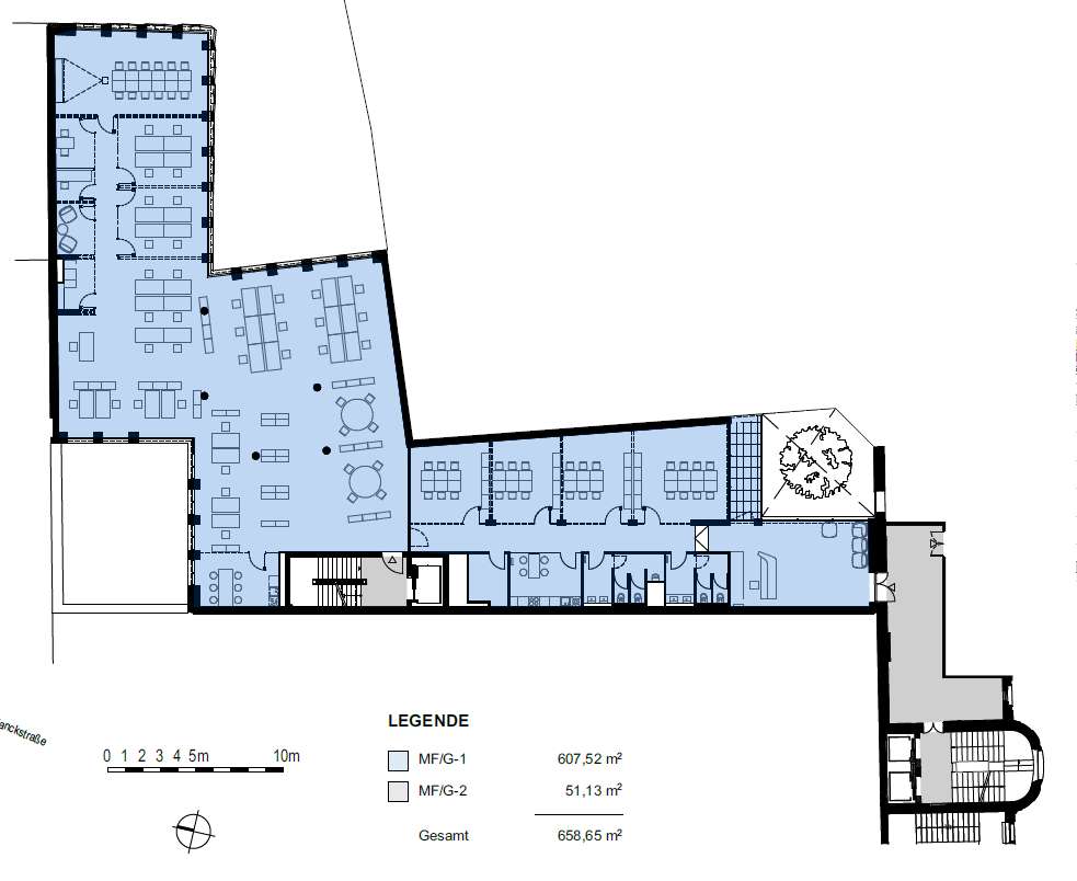
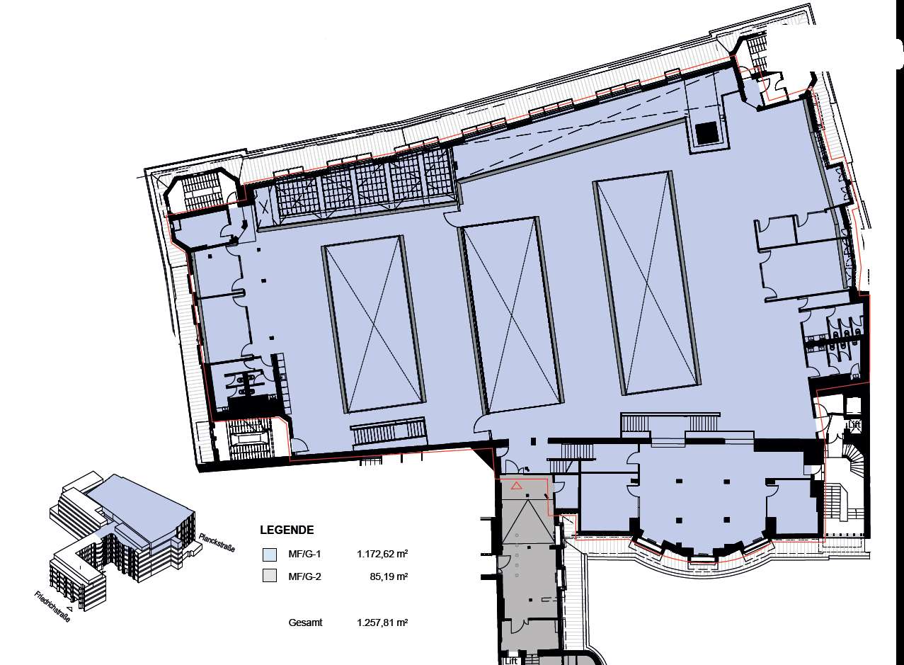
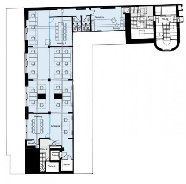
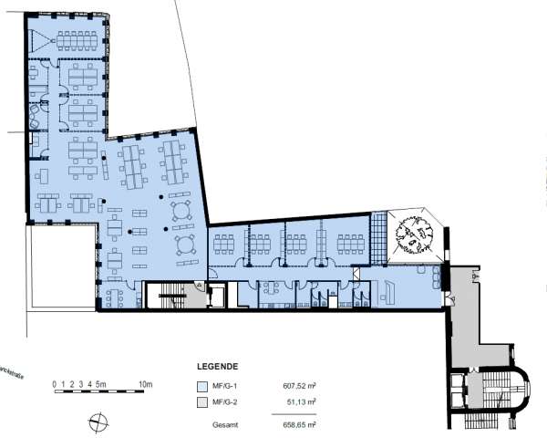
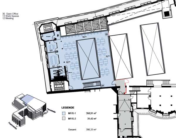
Grundrisse
Anbindung
23,8 km
170 m
170 m
170 m
1,7 km
Karte