Repräsentative, sanierte Büroflächen direkt am Alexanderplatz

Adresse
Haus am Zentrum
Karl-Marx-Allee 3
10178 Berlin
Mitte
Verfügbar ab
Sofort
Fläche
bis 1.892 m2
Teilbar ab m2
ab 843 m2
Mietpreis ab m2
ab
Provision
Provisionsfrei
Ausstattung
- ESG|NACHHALTIGKEIT: PV-Anlagen werden nachgerüstet
- BALKON/TERRASSE: Balkon/Terrasse im 1. - 6. OG vorhanden
- KLIMATISIERUNG: Teilweise Kühlung, Be- und Entlüftung, außenliegender Sonnenschutz
- EDV: CAT 7
- BESONDERHEITEN: Raumhöhe ca. 4,60 Meter
- STELLPLÄTZE: in unmittelbarer Umgebung
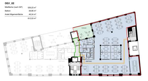
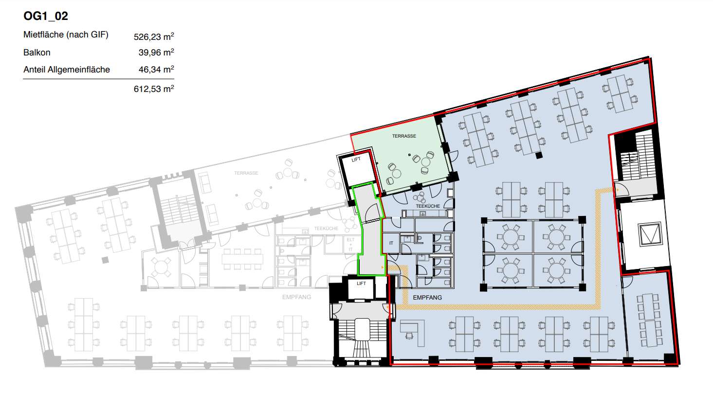
Grundrisse
Anbindung
26,8 km
200 m
600 m
600 m
400 m
600 m
600 m
Karte