Geräumige Büroräume in einem historischen Gebäude

Adresse
Technologie- und Gründerzentrum
Am Borsigturm 56-70
13507 Berlin
Reinickendorf
Verfügbar ab
Sofort
Fläche
bis 2.045 m2
Teilbar ab m2
ab 448 m2
Mietpreis ab m2
ab
Provision
Provisionsfrei
Ausstattung
- EDV: Doppel- bzw. Hohlraumböden für die EDV, CAT 5 / CAT 7
- STELLPLÄTZE: können in ausreichender Anzahl angemietet werden.
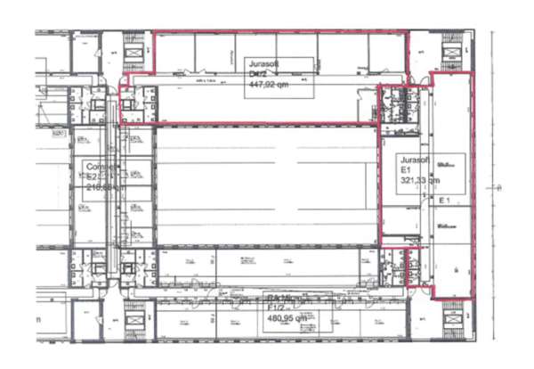
Grundrisse
Anbindung
40,5 km
450 m
1 km
9,1 km
500 m
Karte