Zurück

Econopark: funktionale und flexible Büroflächen

econopark Wolfener Straße

Adresse
econopark Wolfener Straße
Wolfener Straße 32-34
12681 Berlin
Marzahn-Hellersdorf

Verfügbar ab
Sofort


Fläche
bis 4.301 m2

Teilbar ab m2
ab 505 m2


Mietpreis ab m2
ab 7,00 €

Provision
Provisionsfrei


Ausstattung

  • EDV: WiredScore Gold Zertifizierung, Glasfaser
  • STELLPLÄTZE: können in ausreichender Anzahl angemietet werden.

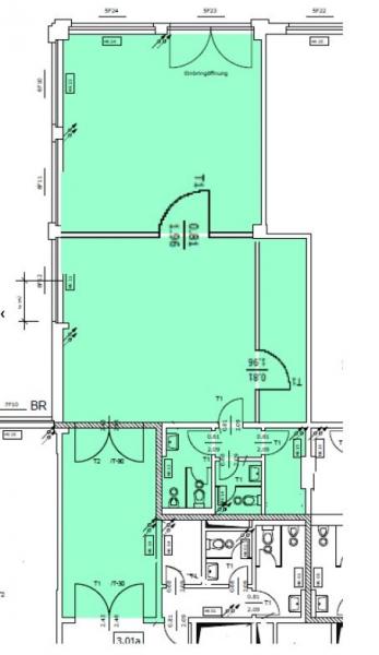
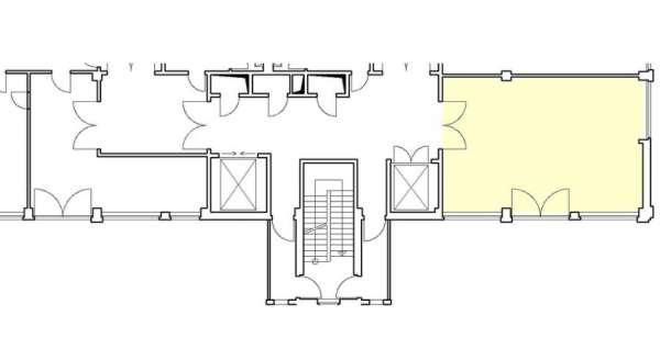
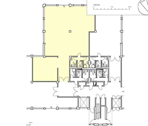
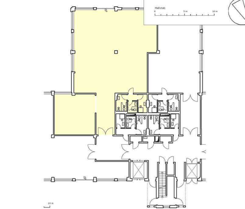
Grundrisse


Anbindung

S-Bahn
750 m
Flughafen-BER
28,8 km
Regionalverkehr
2,3 km
Fernverkehr
12,8 km

Karte

Ansprechpartner

Maximilian Sadowski
Jr. Real Estate Consultant

Tel.: +49 (0)30 600 31 55 - 01
E-Mail.:

Exposé anfragen

Wir speichern Ihre Daten zur Bearbeitung Ihrer Anfrage. Weitere Informationen erhalten Sie in unserer Datenschutzerklärung.



In der Nähe