Freundliche Loftflächen im sanierten Altbau

Adresse
Oranienstraße 25
10999 Berlin
Friedrichshain-Kreuzberg
Verfügbar ab
Sofort
Fläche
bis 3.055 m2
Teilbar ab m2
ab 555 m2
Mietpreis ab m2
ab
Provision
Provisionsfrei
Ausstattung
- 3 m Deckenhöhe
- BESONDERHEITEN: Offener Empfangsbereich
- STELLPLÄTZE: 4 Stk. vorhanden
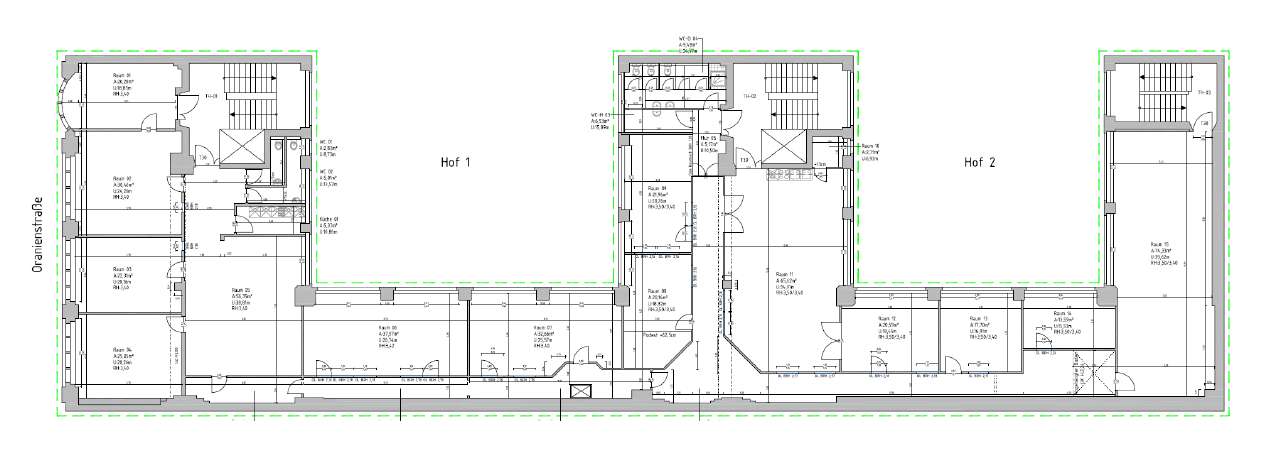
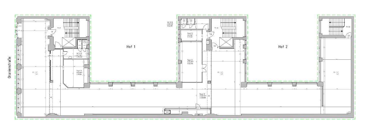
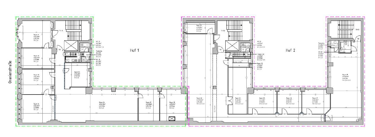
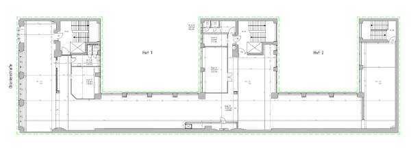
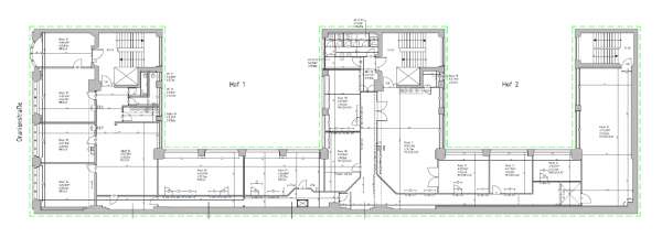
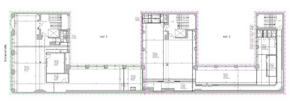
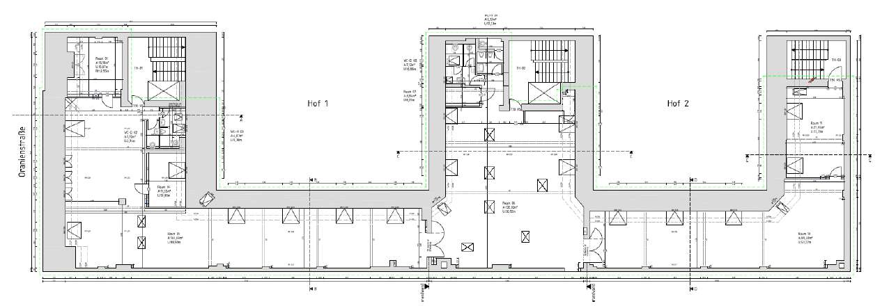
Grundrisse
Anbindung
21,4 km
1,6 km
350 m
1,6 km
1,6 km
1,6 km
80 m
Karte