Repräsentative Büroflächen in denkmalgeschütztem Altbau mit Loftcharakter

Adresse
Haus der Deutschen Buchdrucker
Dudenstraße 10
10965 Berlin
Friedrichshain-Kreuzberg
Verfügbar ab
Sofort
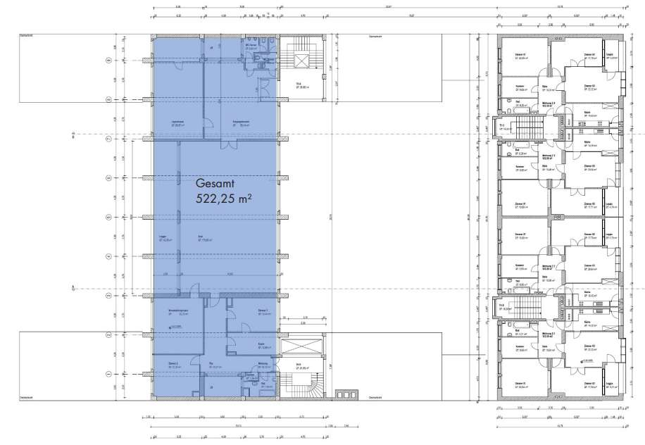
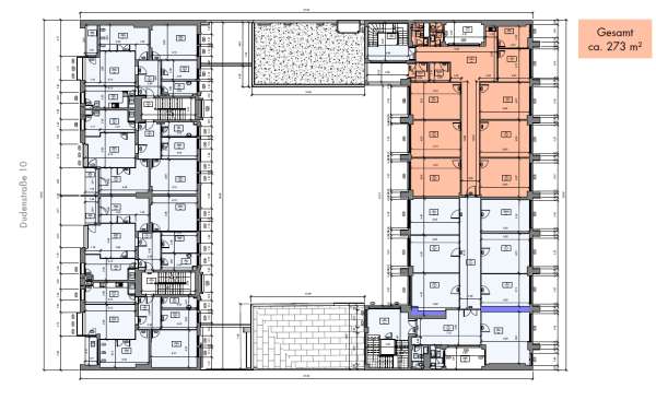
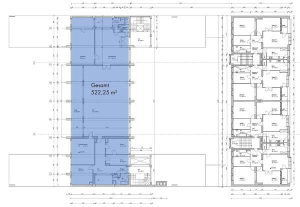
Fläche
bis 1.463 m2
Teilbar ab m2
ab 265 m2
Mietpreis ab m2
ab
Provision
Provisionsfrei
Ausstattung
- EDV: Glasfaser
- BESONDERHEITEN: lichte Raumhöhe bis zu 6,5 m
- STELLPLÄTZE: 26 Stellplätze verfügbar
Grundrisse
Anbindung
70 m
70 m
1,5 km
1,9 km
1,9 km
20,4 km
Karte