Hochwertige Büros in zentraler Lage am Checkpoint Charlie mit repräsentativer Lobby

Adresse
Checkpoint Charlie
Friedrichstraße 50 - 55
10117 Berlin
Mitte
Verfügbar ab
Sofort
Fläche
bis 1.958 m2
Teilbar ab m2
ab 475 m2
Mietpreis ab m2
ab
Provision
Provisionsfrei
Ausstattung
- BALKON/TERRASSE: Balkone in verschiedenen Etagen
- EDV: Strukturierte EDV-Verkabelung Doppelboden
- ZERTIFIZIERUNG: BREEAM
- BESONDERHEITEN: 24 Stunden besetzter Empfang
- KLIMATISIERUNG: Witterungsgeführte Raumluftkühlung
- STELLPLÄTZE: Tiefgaragenstellplätze Fahrradstellplätze
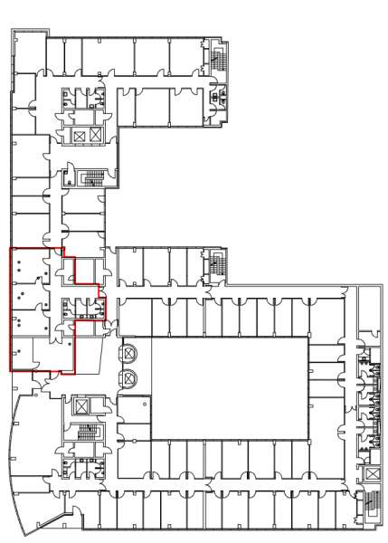
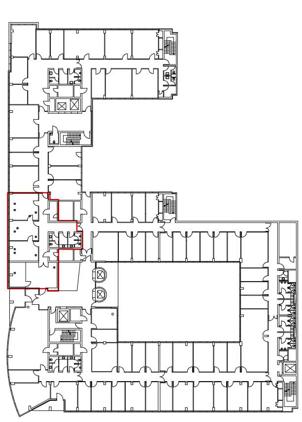
Grundrisse
Anbindung
77 m
22 km
1,2 km
1,1 km
3,1 km
Karte