Zurück

Ihre neue Fläche im modernen und repräsentativen Bürogebäude

grow

Adresse
grow
Hussitenstraße 32 - 33
13355 Berlin
Mitte

Verfügbar ab
Sofort


Fläche
bis 1.435 m2

Teilbar ab m2
ab 641 m2


Mietpreis ab m2
ab 16,00 €

Provision
Provisionsfrei


Ausstattung

  • BALKON/TERRASSE: Dachterrasse
  • KLIMATISIERUNG: Kühlung in jedem Raum, außenliegender Sonnenschutz
  • BESONDERHEITEN: Think Tanks, Personenaufzug
  • STELLPLÄTZE: 9 PKW-Stellplätze Fahrradstellplätze
  • HEIZUNGSART: Fernwärme
  • EDV: Glasfaser, CAT 7, Bodentanks
  • ZERTIFIZIERUNG: BREEAM-Zertifizierung (Exzellent)

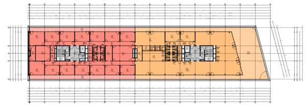
Grundrisse


Anbindung

Flughafen-BER
30,5 km
Fernverkehr
1,1 km
S-Bahn
400 m
U-Bahn
900 m
Regionalverkehr
1,1 km
Flughafen-Express
1,1 km

Karte

Ansprechpartner

Nele Hänsel
Geschäftsführerin

Tel.: +49 (0)30 600 31 55 - 01
E-Mail.:

Exposé anfragen

Wir speichern Ihre Daten zur Bearbeitung Ihrer Anfrage. Weitere Informationen erhalten Sie in unserer Datenschutzerklärung.



In der Nähe