Imposante Büroetage in einem modernen Businesscenter mit Glasfront

Adresse
Checkpoint Arkaden
Charlottenstraße 81
10969 Berlin
Friedrichshain-Kreuzberg
Verfügbar ab
Sofort
Fläche
bis 3.258 m2
Teilbar ab m2
ab 375 m2
Mietpreis ab m2
ab
Provision
Provisionsfrei
Ausstattung
- STELLPLÄTZE: stehen zur Anmietung zur Verfügung.
- BELEUCHTUNG: integrierte Beleuchtung
- EDV: Doppelboden mit Bodentanks
- KLIMATISIERUNG: Kühldecken
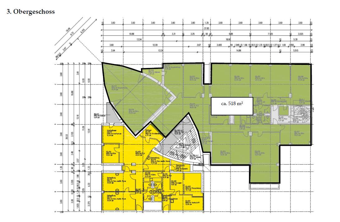
Grundrisse
Anbindung
24 km
3,4 km
250 m
1 km
1,1km
1,5 km
Karte
Ansprechpartner
Maximilian Sadowski
Jr. Real Estate Consultant
Tel.: +49 (0)30 600 31 55 - 01
E-Mail.:
