Zurück

Repräsentativer Altbau im neoklassizistischen Stil: Helle Loftflächen für moderne Bürolösungen

PELIKAN - HAUS

Adresse
PELIKAN - HAUS
Ritterstraße 9 - 10
10969 Berlin
Friedrichshain-Kreuzberg

Verfügbar ab
Sofort


Fläche
bis 5.339 m2

Teilbar ab m2
ab 760 m2


Mietpreis ab m2
ab 27,50 €

Provision
Provisionsfrei


Ausstattung

  • ZERTIFIZIERUNG: BREEAM Pre-Check angestrebt
  • BARRIEREFREIHEIT: barrierefreie WC's im UG
  • BESONDERHEITEN: Duschen im UG
  • KLIMATISIERUNG: Kühlung aller Mietflächen inklusive und in Abstimmung mit dem Mieter durch effiziente Eisspeicher-Kühlanlage
  • EDV: Glasfaser- und Breitbandanschluss, CAT 7, Kabeltrassen
  • KELLER/LAGER: Lagerflächen im UG
  • ESG|NACHHALTIGKEIT: Eisspeicher
  • STELLPLÄTZE: Fahrradstellplätze im Hof und im UG möglich

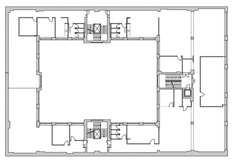
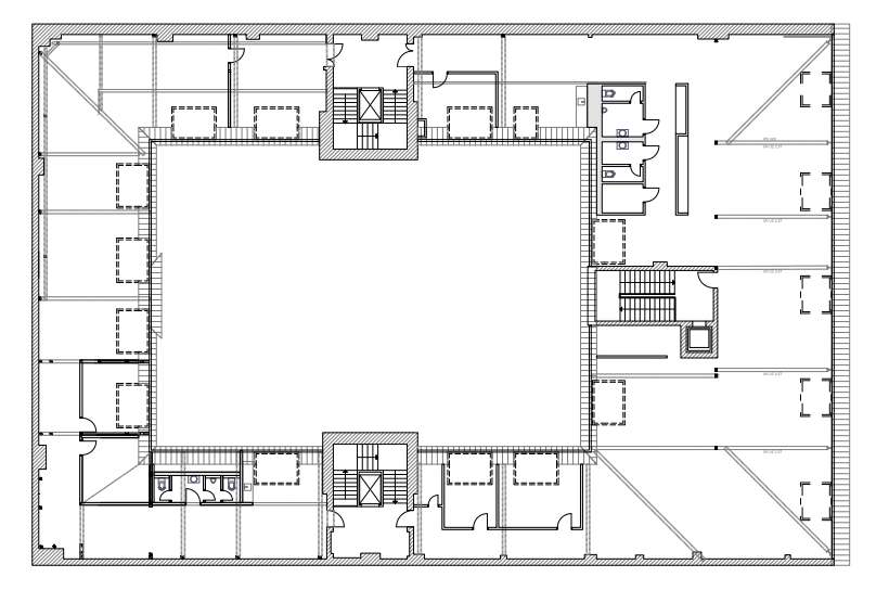
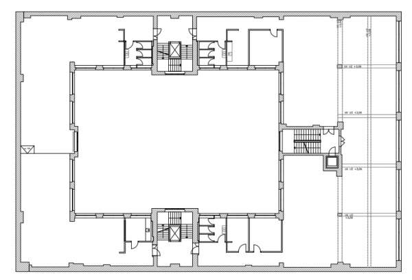
Grundrisse


Anbindung

U-Bahn
400m
Bus
180m
S-Bahn
1,8km
Fernverkehr
2,2 km
Regionalverkehr
2,2 km
Flughafen-Express
2,2 km
Flughafen-BER
20,8 km

Karte

Ansprechpartner

Renée Neumann
Real Estate Consultant

Tel.: +49 (0)30 600 31 55 - 01
E-Mail.:

Exposé anfragen

Wir speichern Ihre Daten zur Bearbeitung Ihrer Anfrage. Weitere Informationen erhalten Sie in unserer Datenschutzerklärung.



In der Nähe