Historischer Charme trifft moderne Eleganz: Flexibles Arbeiten in einem denkmalgeschützten Gebäude

Adresse
LS125
Leipziger Straße 125
10117 Berlin
Mitte
Verfügbar ab
Sofort
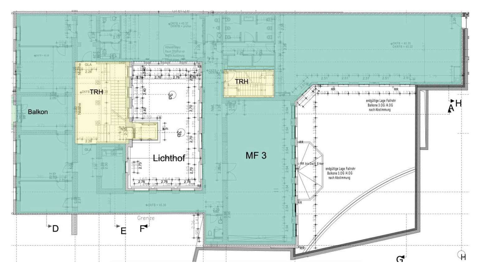
Fläche
bis 1.552 m2
Teilbar ab m2
ab 717 m2
Mietpreis ab m2
ab
Provision
Provisionsfrei
Ausstattung
- STELLPLÄTZE: in der Mall of Berlin, Anmietung erfolgt über Apcoa Parking
- BESONDERHEITEN: Die Flächen sind nicht barrierefrei
Grundrisse
Anbindung
290 m
280 m
280 m
2,7 km
23,2 km
Karte