Zurück

Modernes Business-Domizil im Herzen von Berlin Mitte

Warenhaus Gebr. Tietz

Adresse
Warenhaus Gebr. Tietz
Klosterstraße 64
10179 Berlin
Mitte

Verfügbar ab
Sofort


Fläche
bis 1.297 m2

Teilbar ab m2
ab 123 m2


Mietpreis ab m2
ab 28,00 €

Provision
Provisionsfrei


Ausstattung

  • KLIMATISIERUNG: Klimaanlage vorhanden
  • BALKON/TERRASSE: Terrasse vorhanden

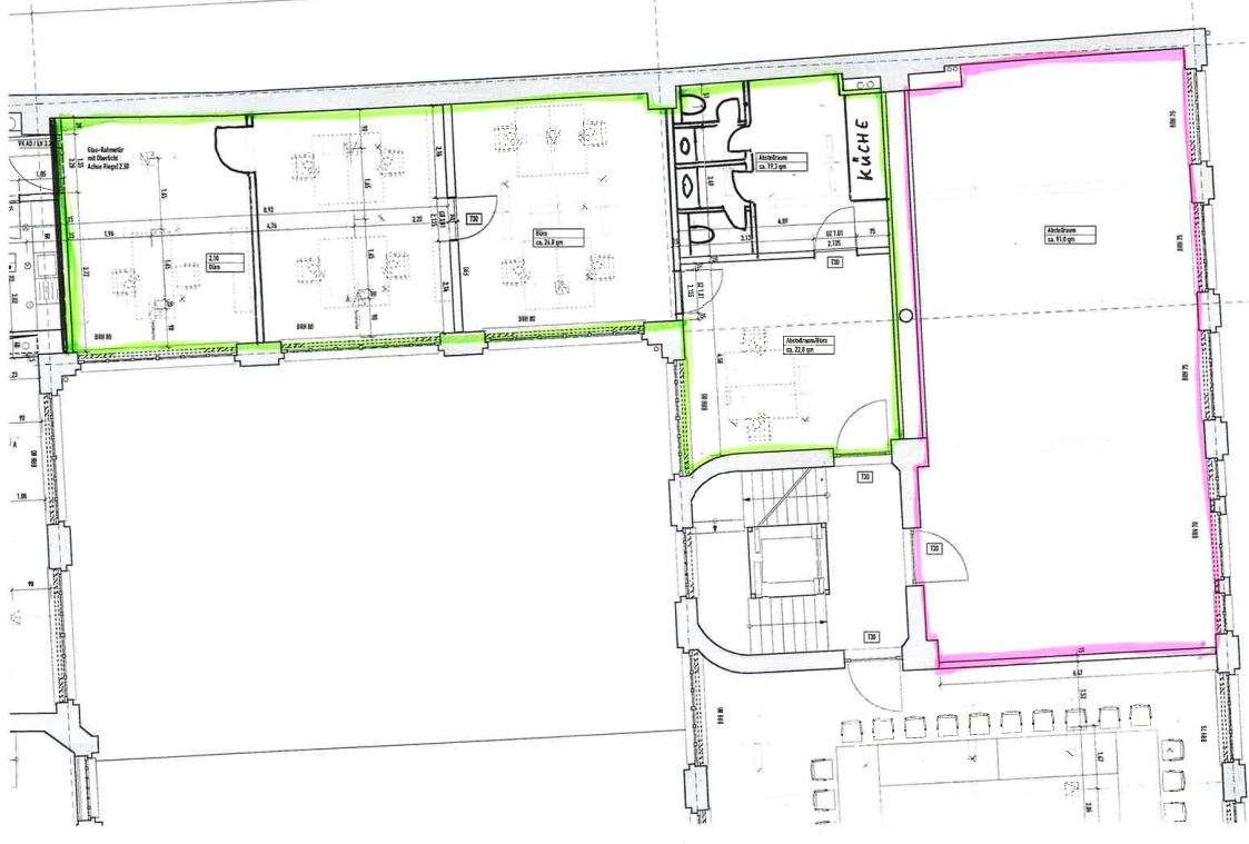
Grundrisse


Anbindung

U-Bahn
10 m
Bus
400 m
S-Bahn
500 m
Fernverkehr
850 m
Regionalverkehr
850 m
Flughafen-Express
850 m
Flughafen-BER
24 km

Karte

Ansprechpartner

Renée Neumann
Real Estate Consultant

Tel.: +49 (0)30 600 31 55 - 01
E-Mail.:

Exposé anfragen

Wir speichern Ihre Daten zur Bearbeitung Ihrer Anfrage. Weitere Informationen erhalten Sie in unserer Datenschutzerklärung.



In der Nähe