Büro- und Loftflächen im klassisch, modernen Gewerbehof

Adresse
Lichtfabrik
Kohlfurter Straße 41 - 43
10999 Berlin
Friedrichshain-Kreuzberg
Verfügbar ab
Sofort
Fläche
bis 3.373 m2
Teilbar ab m2
ab 355 m2
Mietpreis ab m2
ab
Provision
Provisionsfrei
Ausstattung
- EDV: Elektroverkabelung auf Trassen
- STELLPLÄTZE: stehen zur Anmietung zur Verfügung.
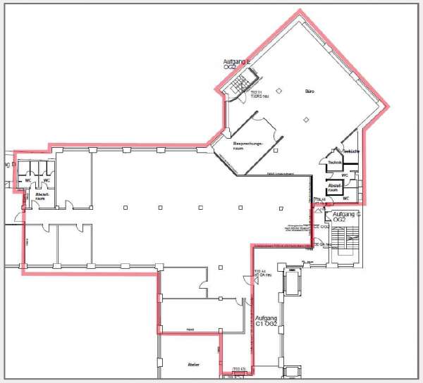
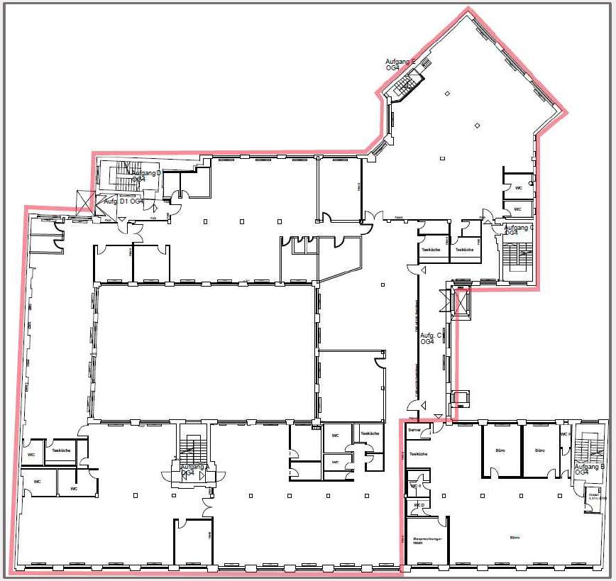
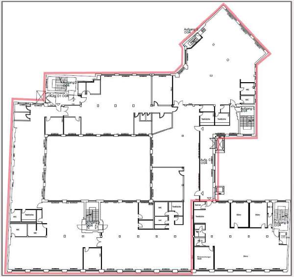
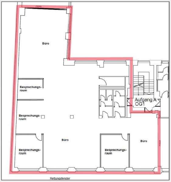
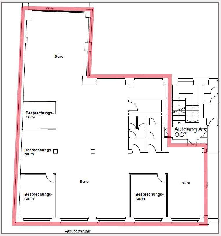
Grundrisse
Anbindung
21,5 km
2,3 km
350 m
2,3 km
160 m
4,0 km
Karte
Ansprechpartner
Maximilian Sadowski
Jr. Real Estate Consultant
Tel.: +49 (0)30 600 31 55 - 01
E-Mail.:
