Moderne Loftflächen in unmittelbarer Spreelage

Adresse
Gebauer Höfe - BRIQ
Franklinstraße 12 - 14
10587 Berlin
Charlottenburg-Wilmersdorf
Verfügbar ab
2. Quartal,
2025
Fläche
bis 1.233 m2
Teilbar ab m2
ab 495 m2
Mietpreis ab m2
ab
Provision
Provisionsfrei
Ausstattung
- BESONDERHEITEN: Bis zu 4,80 m Decken Kantine/Cafeteria im Haus
- EDV: WiredScore Platinum Zertifizierung
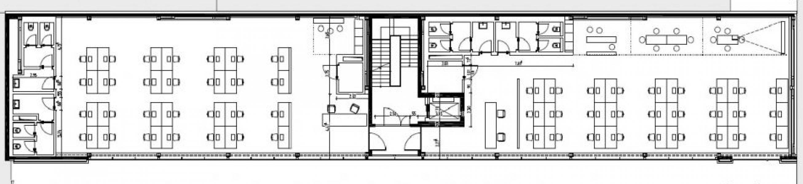
Grundrisse
Anbindung
900 m
260 m
1,3 km
2 km
2 km
2 km
Karte