Historische Hochgarage als modernes Büro mit Penthouse-Flair

Adresse
Kant-Garagen
Kantstraße 126 - 127
10625 Berlin
Charlottenburg-Wilmersdorf
Verfügbar ab
Sofort
Fläche
bis 3.600 m2
Teilbar ab m2
ab 670 m2
Mietpreis ab m2
ab
Provision
Provisionsfrei
Ausstattung
- STELLPLÄTZE: Fahrrad-Stellplatz + TG-Stellplätze
- EDV: Kabeltrassen, EDV-Verkabelung Übergabepunkt Serverraum, Glasfaseranschluss möglich
- KLIMATISIERUNG: Klima/Be- und Entlüftung
- BELEUCHTUNG: Grundbeleuchtung
- BESONDERHEITEN: Betonboden, Gastronomie und CoWorkin im EG
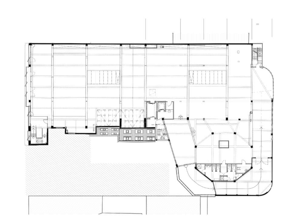
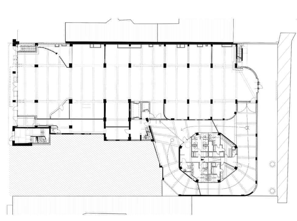
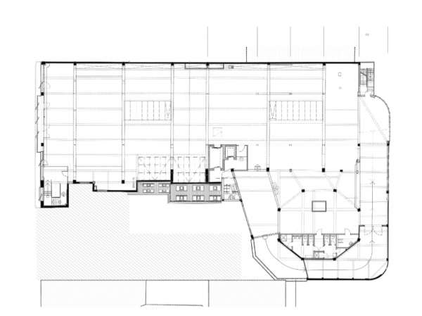
Grundrisse
Anbindung
500 m
800 m
800 m
800 m
1,4 km
31,9 km
Karte