Zurück

Einzigartige Loftflächen mit direktem Zugang zur Spree

Labels Berlin 1

Adresse
Labels Berlin 1
Stralauer Allee 10-11
10245 Berlin
Friedrichshain-Kreuzberg

Verfügbar ab
Sofort


Fläche
bis 4.278 m2

Teilbar ab m2
ab 708 m2


Mietpreis ab m2
ab 25,00 €

Provision
Provisionsfrei


Ausstattung

  • ZERTIFIZIERUNG: BREEAM "Excellent"
  • BESONDERHEITEN: direkter Blick und Zugang zur Spree, Deckenhöhe ca. 3,65 - 8 m
  • EDV: Hohlraumböden für EDV, Glasfaser, Netzredundanz vorhanden
  • KLIMATISIERUNG: Lüftungsanlagen mit Wärmerückgewinnung, Anlagen zur Kühlung, Fußbodenheizung, mechanische Be- und Entlüftung
  • BALKON/TERRASSE: 286 m² Terrasse im EG
  • WASSERBLICK
  • STELLPLÄTZE: stehen im Hof zur Anmietung zur Verfügung

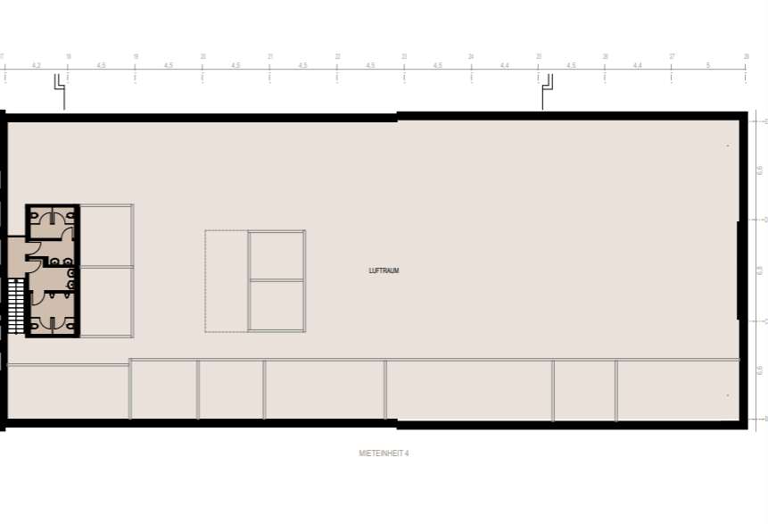
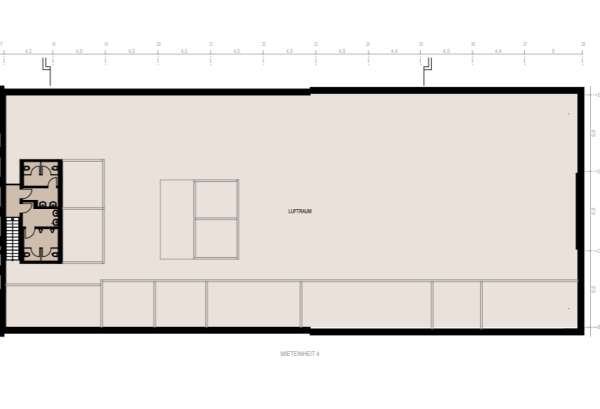
Grundrisse


Anbindung

Flughafen-BER
21,1 km
Fernverkehr
1,1 km
U-Bahn
500 m
S-Bahn
1,1 km
Bus
150 m
Regionalverkehr
1,1 km

Karte

Ansprechpartner

Renée Neumann
Real Estate Consultant

Tel.: +49 (0)30 600 31 55 - 01
E-Mail.:

Exposé anfragen

Wir speichern Ihre Daten zur Bearbeitung Ihrer Anfrage. Weitere Informationen erhalten Sie in unserer Datenschutzerklärung.



In der Nähe