Zurück

JW1 - Nachhaltiges Büroensemble am geschichtsträchtigen Standort

JW1

Adresse
JW1
Julie-Wolfthorn-Straße 1
10115 Berlin
Mitte

Verfügbar ab
Sofort


Fläche
bis 760 m2

Teilbar ab m2
ab 380 m2


Mietpreis ab m2
ab 30,00 €

Provision
Provisionsfrei


Ausstattung

  • KLIMATISIERUNG: Kühldecken, Frischluftanlage, Außenliegender Sonnenschutz
  • STELLPLÄTZE: stehen in der Tiefgarage und im Untergeschoss zur Anmietung zur Verfügung.
  • EDV: EDV-Verkabelung über Bodentanks, Glasfaserverkabelung

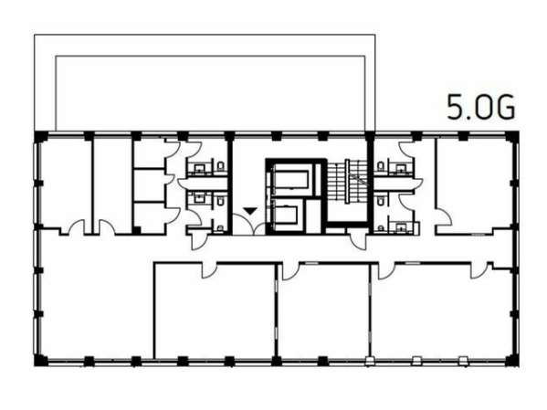
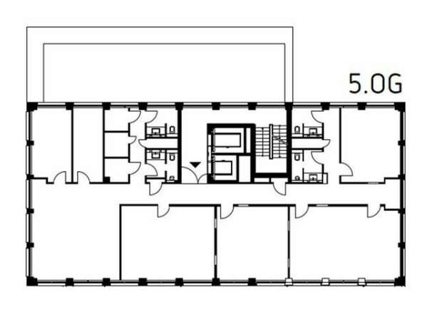
Grundrisse


Anbindung

S-Bahn
350 m
U-Bahn
220 m
Fernverkehr
1,2 km
Regionalverkehr
1,2 km
Flughafen-Express
1,2 km
Flughafen-BER
24,8 km

Karte

Ansprechpartner

Renée Neumann
Real Estate Consultant

Tel.: +49 (0)30 600 31 55 - 01
E-Mail.:

Exposé anfragen

Wir speichern Ihre Daten zur Bearbeitung Ihrer Anfrage. Weitere Informationen erhalten Sie in unserer Datenschutzerklärung.



In der Nähe