Attraktives Bürogebäude am Gleisdreieck: Flexibel gestaltbare Flächen für individuelle Bedürfnisse

Adresse
Pohlstraße 20
10785 Berlin
Mitte
Verfügbar ab
Sofort
Fläche
bis 6.566 m2
Teilbar ab m2
ab 596 m2
Mietpreis ab m2
ab
Provision
Provisionsfrei
Ausstattung
- STELLPLÄTZE: in ausreichender Menge vorhanden
- KLIMATISIERUNG: Klimatisierung teilweise vorhanden, außenliegende Sonnenschutzsysteme
- EDV: CAT 6
- ZERTIFIZIERUNG: Zertifizierung mit dem Ziel DGNB Gold
- BESONDERHEITEN: Raumhöhe: 2,88 m - 3,22 m, Lasten/Personenaufzug
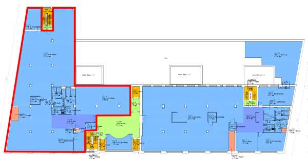
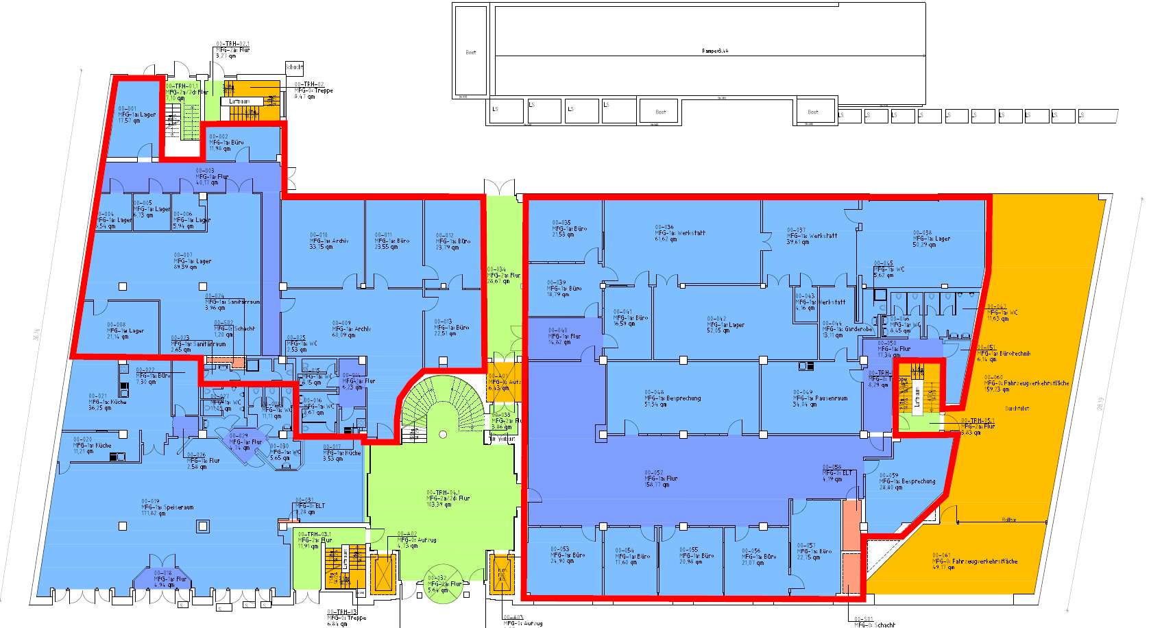
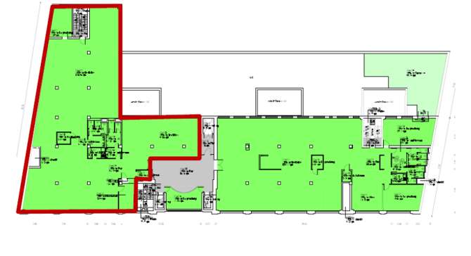
Grundrisse
Anbindung
450 m
1,2 km
1,4 km
22 km
3,6 km
400 m
Karte