Zurück

Attraktive, tageslichtdurchflutete Büroräume in Tempelhof-Schöneberg

FEURIG

Adresse
FEURIG
Feurigstraße 54
10827 Berlin
Tempelhof-Schöneberg

Verfügbar ab
Sofort


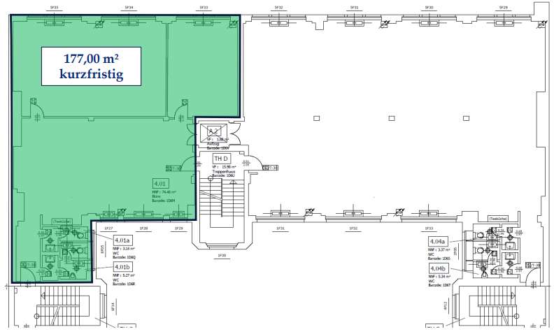
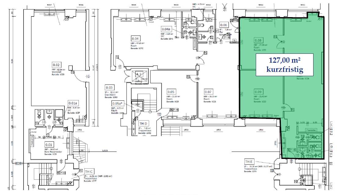
Fläche
bis 1.963 m2

Teilbar ab m2
ab 406 m2


Mietpreis ab m2
ab 15,00 €

Provision
Provisionsfrei


Ausstattung

  • STELLPLÄTZE: Gesicherte Außenstellplätze befinden sich im kameraüberwachten Innenhof (in Planung) + Bike E-Ladestation
  • ZERTIFIZIERUNG: LEED-Zertifizierung und Einhaltung von ESG-Standards
  • BARRIEREFREIHEIT: barrierefreie Zugänge
  • BESONDERHEITEN: Raumhöhe 3,00 m

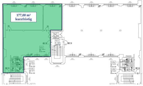
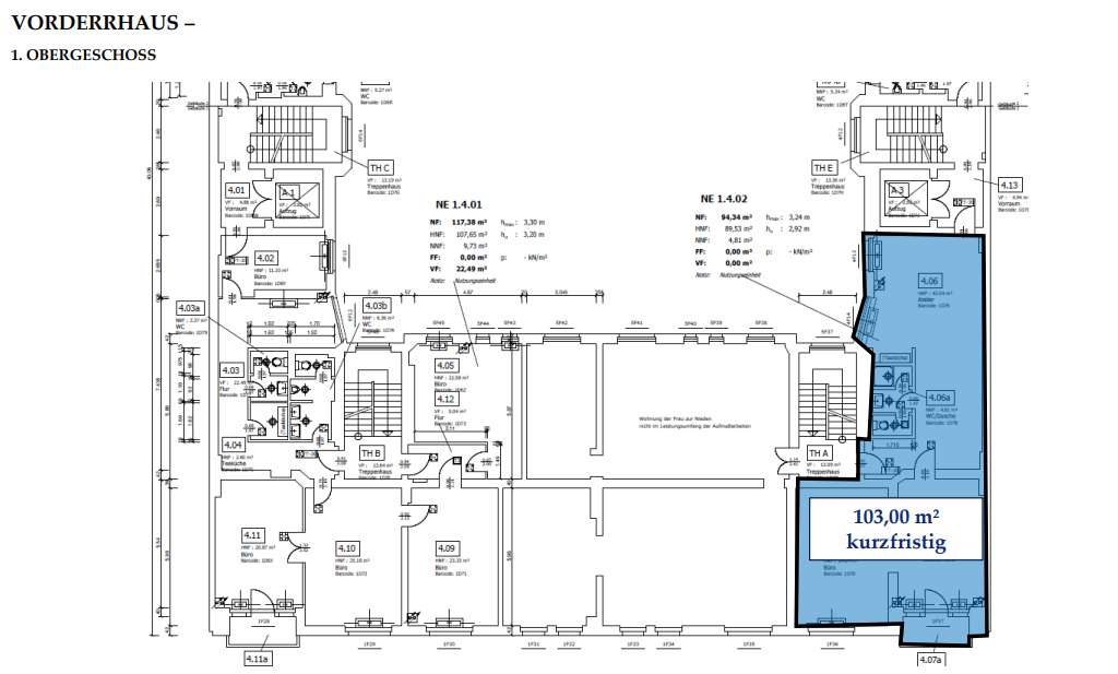
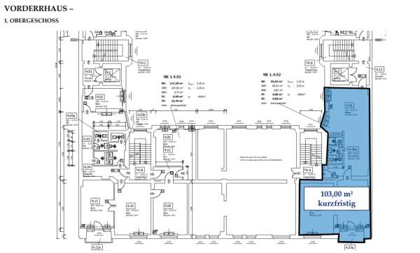
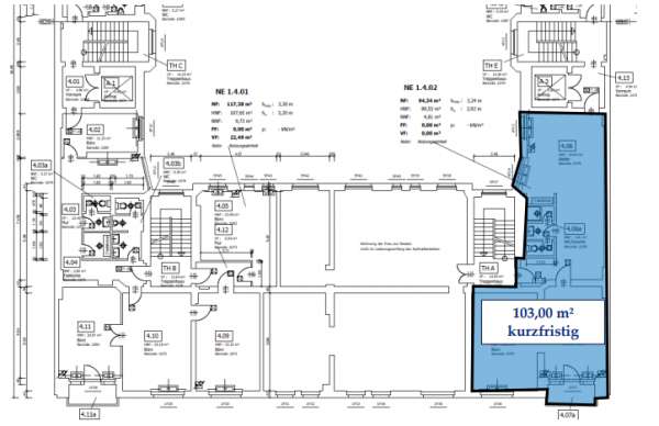
Grundrisse


Anbindung

Flughafen-BER
25 km
Fernverkehr
1,6 km
U-Bahn
1,1 km
S-Bahn
600 m

Karte

Ansprechpartner

Renée Neumann
Real Estate Consultant

Tel.: +49 (0)30 600 31 55 - 01
E-Mail.:

Exposé anfragen

Wir speichern Ihre Daten zur Bearbeitung Ihrer Anfrage. Weitere Informationen erhalten Sie in unserer Datenschutzerklärung.



In der Nähe