Zurück

QH Colonnades: Modernes, lichtdurchflutetes Büroquartier in Europacity mit vielseitiger Nutzung

QH Colonnades

Adresse
QH Colonnades
Heidestraße 39
10557 Berlin
Mitte

Verfügbar ab
Sofort


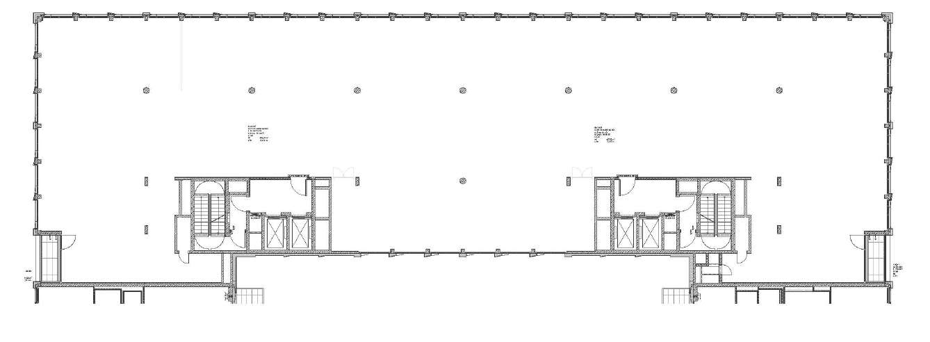
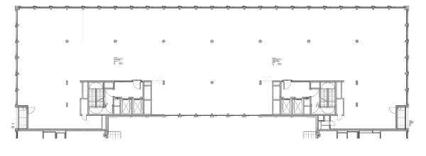
Fläche
bis 2.180 m2

Teilbar ab m2
ab 500 m2


Mietpreis ab m2
ab 30,00 €

Provision
Provisionsfrei


Ausstattung

  • KLIMATISIERUNG: Kühl- und Heizdecken (in Form von abgehängten Deckensegeln)
  • ZERTIFIZIERUNG: DGNB Gold LEED Gold
  • BESONDERHEITEN: Raumhöhe: ca. 3 m
  • EDV: CAT-Verkabelung im Doppelboden
  • STELLPLÄTZE: in ausreichender Anzahl vorhanden

Grundrisse


Anbindung

S-Bahn
1 km
Fernverkehr
1 km
Regionalverkehr
1 km
Flughafen-Express
1 km
U-Bahn
950 m
Bus
50 m
Tram
1 km
Flughafen-BER
28,8 km

Karte

Ansprechpartner

Isabella Kossoi

Tel.: +49 (0)30 600 31 55 - 01
E-Mail.:

Exposé anfragen

Wir speichern Ihre Daten zur Bearbeitung Ihrer Anfrage. Weitere Informationen erhalten Sie in unserer Datenschutzerklärung.



In der Nähe