Zurück

Flexible Büroflächen im modernen Jannowitz-Center

Jannowitz Berlin

Adresse
Jannowitz Berlin
Brückenstraße 5, 5A, 6, 6A
10179 Berlin
Mitte

Verfügbar ab
Sofort


Fläche
bis 2.893 m2

Teilbar ab m2
ab 310 m2


Mietpreis ab m2
ab 21,00 €

Provision
Provisionsfrei


Ausstattung

  • KLIMATISIERUNG: Kühlung der Büroräume über Fancoils, Außenliegender Sonnenschutz
  • BALKON/TERRASSE: begrünte Innenhöfe
  • STELLPLÄTZE: Preis pro Stellplatz 110€, 205 TG-Plätze
  • EDV: EDV-Raum mit Splitanlage 5 kW, Hohlraumboden und Bodentanks
  • BESONDERHEITEN: Digitale Türschließanlage

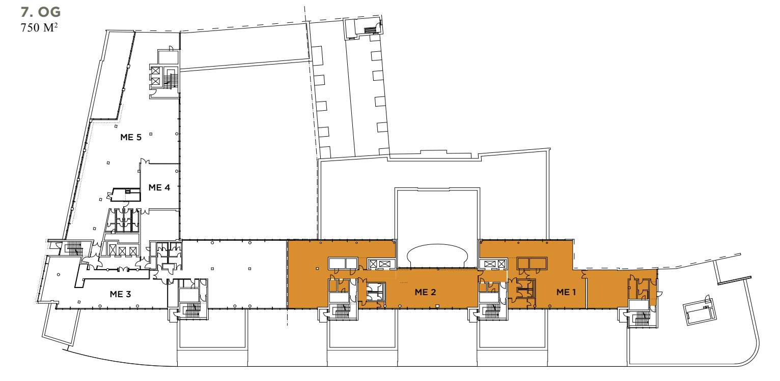
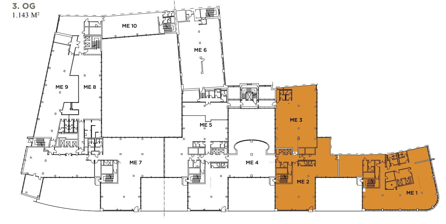
Grundrisse


Anbindung

S-Bahn
150 m
U-Bahn
150 m
Bus
350 m
Fernverkehr
950 m
Regionalverkehr
950 m
Flughafen-Express
950 m
Flughafen-BER
25 km

Karte

Ansprechpartner

Philipp Schulz

Tel.: +49 (0)30 600 31 55 - 01
E-Mail.:

Exposé anfragen

Wir speichern Ihre Daten zur Bearbeitung Ihrer Anfrage. Weitere Informationen erhalten Sie in unserer Datenschutzerklärung.



In der Nähe