Flexible Büroflächen in historischem Gebäude mit modernem Komfort

Adresse
Kurfürstendamm 217
10719 Berlin
Charlottenburg-Wilmersdorf
Verfügbar ab
Sofort
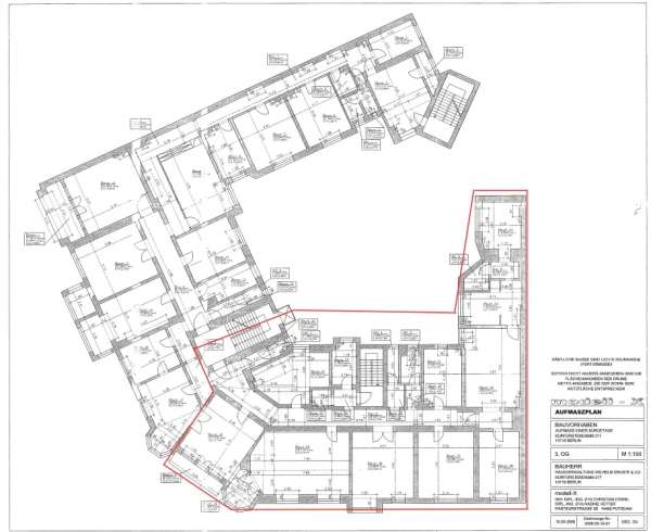
Fläche
bis 800 m2
Teilbar ab m2
ab 400 m2
Mietpreis ab m2
ab
Provision
Provisionsfrei
Ausstattung
- EDV: CAT-7 Verkabelung, Glasfaseranschluss, Redundanz vorhanden
- KLIMATISIERUNG: Heizkonvektoren
- BALKON/TERRASSE: vorhanden
Grundrisse
Anbindung
27m
550m
550m
550m
550m
24,9 km
Karte