Architektonisches Juwel: Haus Hardenberg - meisterlich saniert, bewahrt historische Glasfassade

Adresse
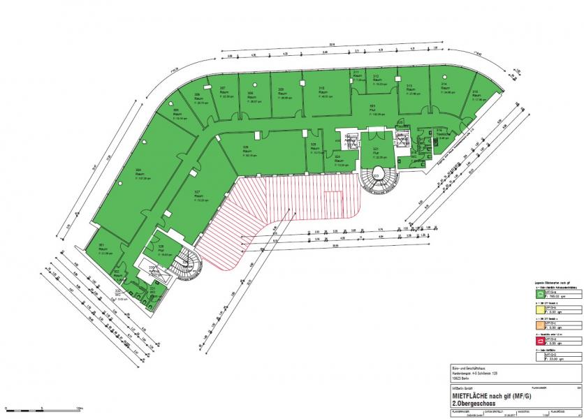
Haus Hardenberg
Knesebeckstraße 1 - 2
10623 Berlin
Charlottenburg-Wilmersdorf
Verfügbar ab
Sofort
Fläche
bis 800 m2
Teilbar ab m2
ab 800 m2
Mietpreis ab m2
ab
Provision
Provisionsfrei
Ausstattung
- STELLPLÄTZE: 5 Außenstellplätze
- EDV: Glasfaser, CAT 7
- BALKON/TERRASSE: ca. 44,05 m² Terrasse im 2. OG
Grundrisse
Anbindung
170 m
800 m
850 m
850 m
150 m
26,6 km
850 m
Karte