Baudenkmal am Heinrich-von-Kleist-Park: Modernisierte Büroflächen mit klassischer Eleganz

Adresse
Potsdamer Straße 188
10783 Berlin
Tempelhof-Schöneberg
Verfügbar ab
Sofort
Fläche
bis 8.592 m2
Teilbar ab m2
ab 686 m2
Mietpreis ab m2
ab
Provision
Provisionsfrei
Ausstattung
- STELLPLÄTZE: Im Innenhof
- EDV: Verkabelung nach Absprache, Glasfaseranschluss, CAT 7
- BESONDERHEITEN: Personenaufzug, Lastenaufzug
- vorhanden
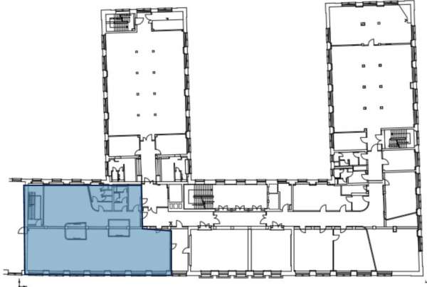
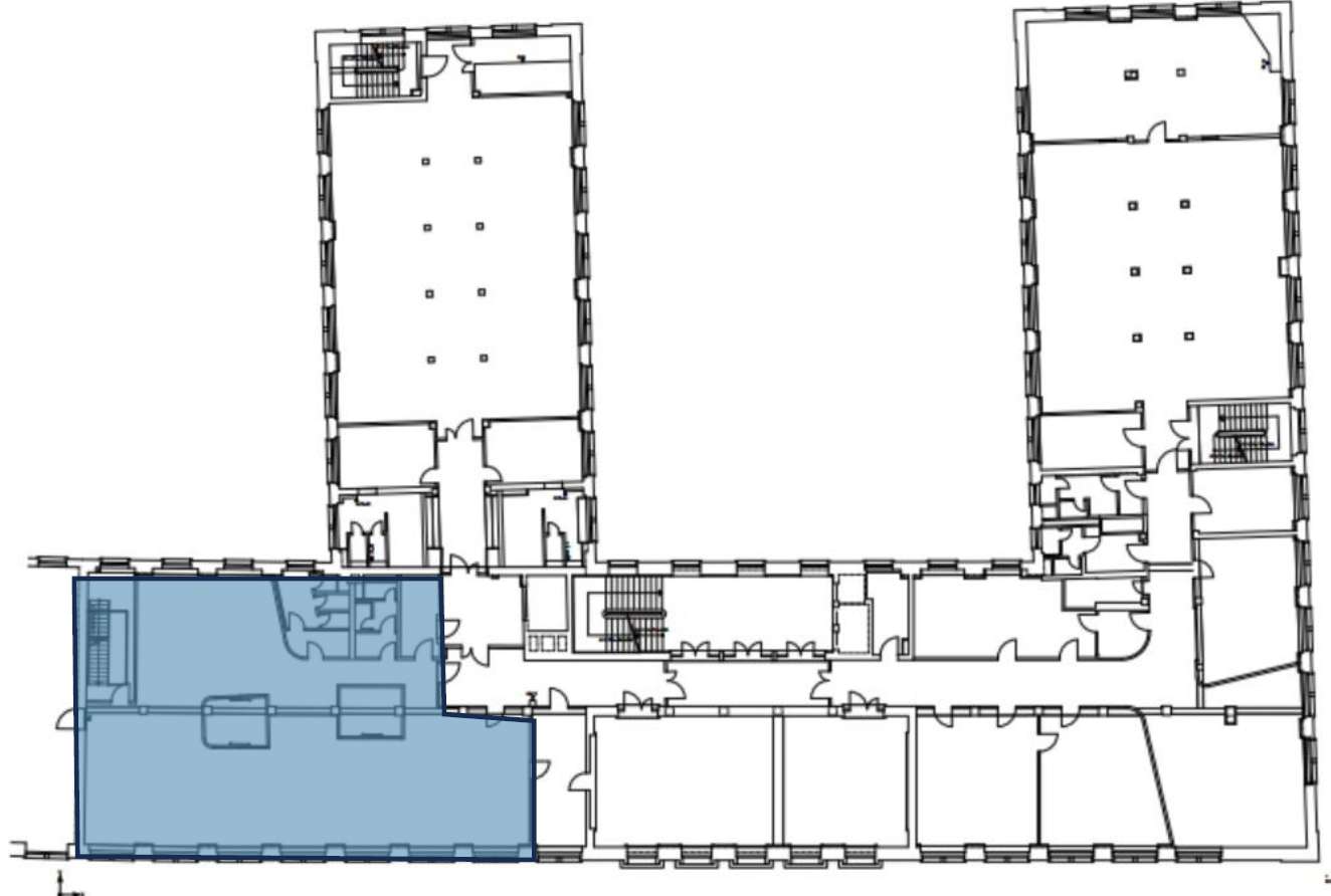
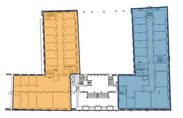
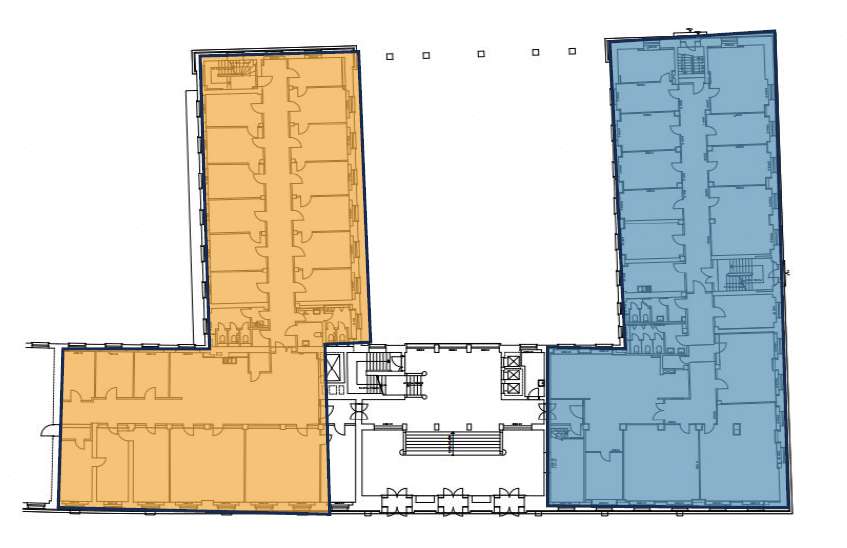
Grundrisse
Anbindung
25,9 km
2,2 km
5 m
650 m
2,2 km
100 m
Karte