ZEUGHOF: Open-Space-Flächen mit Industriecharme

Adresse
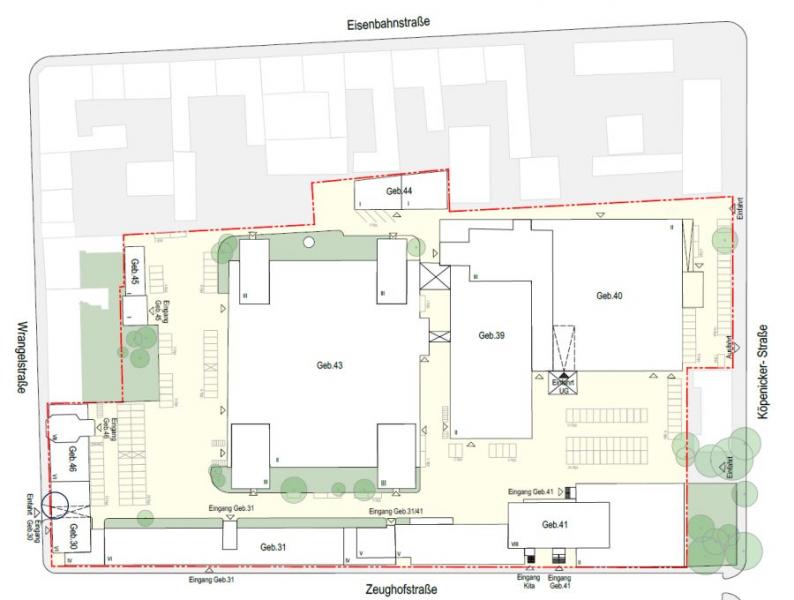
Zeughof
Zeughofstraße 1
10997 Berlin
Friedrichshain-Kreuzberg
Verfügbar ab
Sofort
Fläche
bis 21.627 m2
Teilbar ab m2
ab 500 m2
Mietpreis ab m2
ab
Provision
Provisionsfrei
Ausstattung
- KLIMATISIERUNG: über 360° Umluftkühlgeräte an der Decke
- EDV: CAT 7
- BALKON/TERRASSE: Dachterrassen in beiden Gebäuden vorhanden
- ESG|NACHHALTIGKEIT: Fernwärme
- INTERNETPROVIDER: Telekom, Colt, Vodafone
- STELLPLÄTZE: 152 Außenstellplätze und 59 Tiefgaragenstellplätze
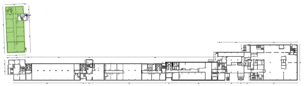
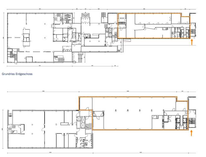
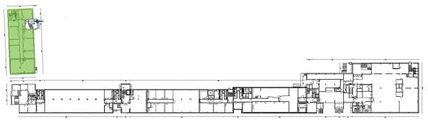
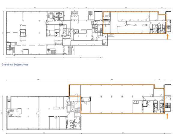
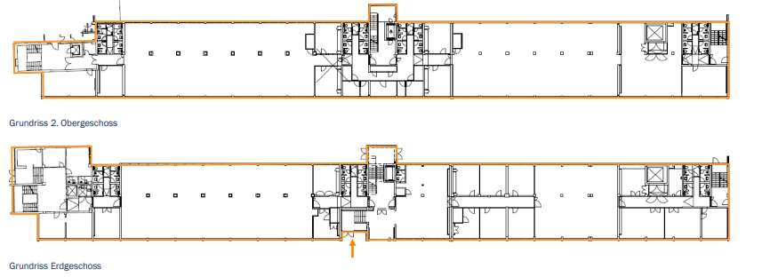
Grundrisse
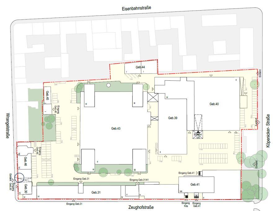
Anbindung
500 m
1,3 km
1,4 km
22 km
280 m
1,4 km
1,4 km
1,2 km
Karte