Gewerbehof mit sanierten Fabriketagen: Moderne Büros und flexible Ausstattung

Adresse
ALEXANDRINEN
Alexandrinenstraße 2 - 3
10969 Berlin
Friedrichshain-Kreuzberg
Verfügbar ab
Sofort
Fläche
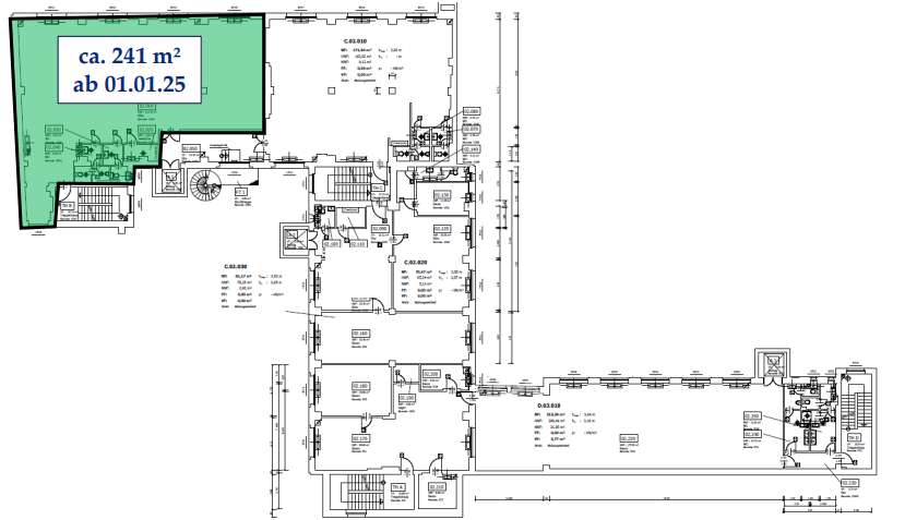
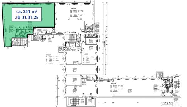
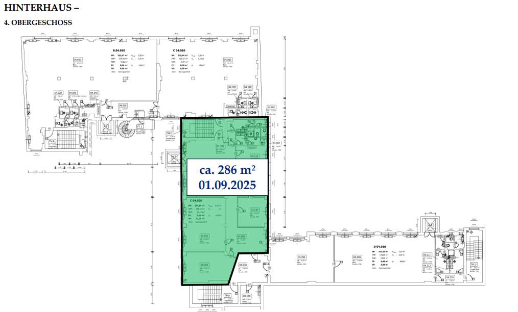
bis 1.365 m2
Teilbar ab m2
ab 433 m2
Mietpreis ab m2
ab
Provision
Provisionsfrei
Ausstattung
- ZERTIFIZIERUNG: LEED-Zertifizierung und Einhaltung von ESG-Standards
- BARRIEREFREIHEIT: Barrierefreie Zugänge,
- STELLPLÄTZE: Außenstellplätze E-Ladestationen in Planung
Grundrisse
Anbindung
650m
400m
2,2 km
2,2 km
24,5 km
Karte