Zurück

Moderne Büro- und Einzelhandelsflächen in exponierter Lage in der Friedrichstraße

Friedrich Carré 1

Adresse
Friedrich Carré 1
Friedrichstraße 147 - 148
10117 Berlin
Mitte

Verfügbar ab
Sofort


Fläche
bis 1.615 m2

Teilbar ab m2
ab 337 m2


Mietpreis ab m2
ab 35,00 €

Provision
Provisionsfrei


Ausstattung

  • KLIMATISIERUNG: zentrale Lüftungsanlage mit unterstützender Kühlung Außenliegender Sonnenschutz
  • BALKON/TERRASSE: teilweise vorhanden
  • ZERTIFIZIERUNG: BREEAM "very good"
  • EDV: Hohlraumböden für EDV
  • BESONDERHEITEN: Personenaufzug vorhanden
  • STELLPLÄTZE: Tiefgaragenstellplätze vorhanden

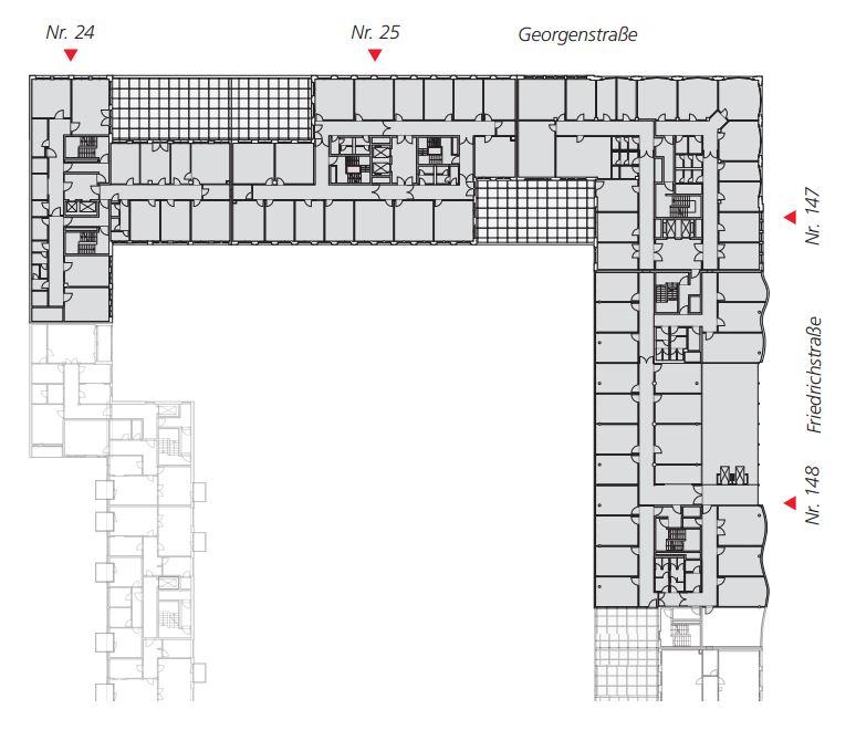
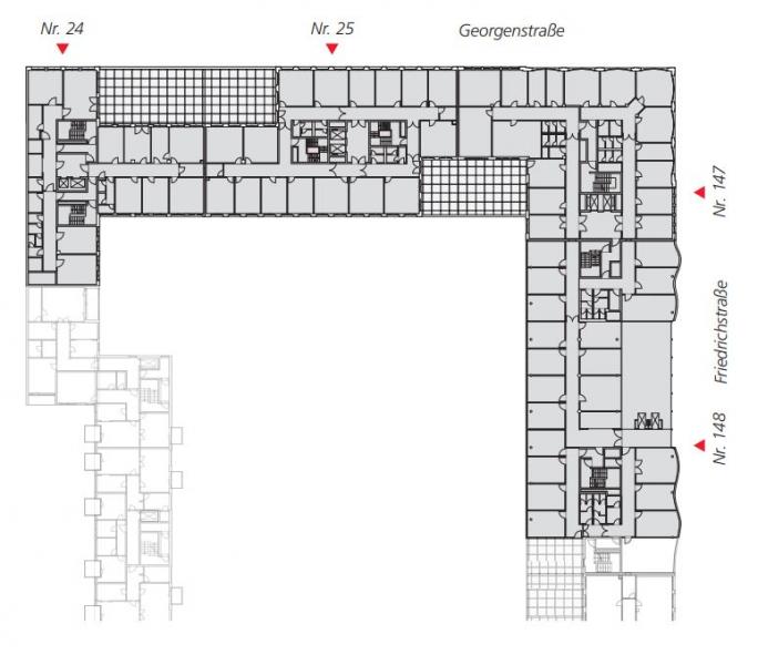
Grundrisse


Anbindung

U-Bahn
63 m
S-Bahn
63 m
Regionalverkehr
63 m
Regionalverkehr
63 m
Flughafen-BER
24,8 km
Fernverkehr
2,2 km

Karte

Ansprechpartner

Nele Hänsel
Geschäftsführerin

Tel.: +49 (0)30 600 31 55 - 01
E-Mail.:

Exposé anfragen

Wir speichern Ihre Daten zur Bearbeitung Ihrer Anfrage. Weitere Informationen erhalten Sie in unserer Datenschutzerklärung.



In der Nähe