Ihre neuen Büroflächen in Tempelhof

Adresse
Potsdamer Straße 180-182
10781 Berlin
Tempelhof-Schöneberg
Verfügbar ab
Sofort
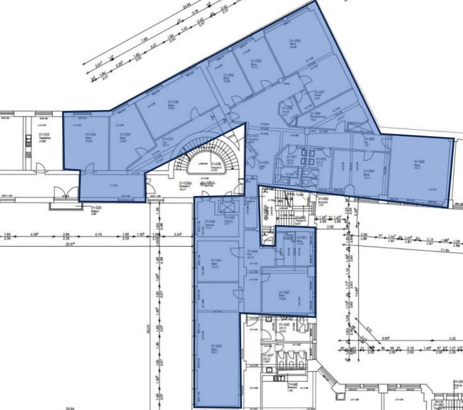
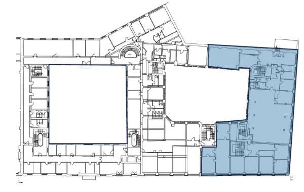
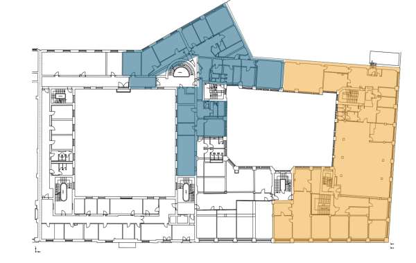
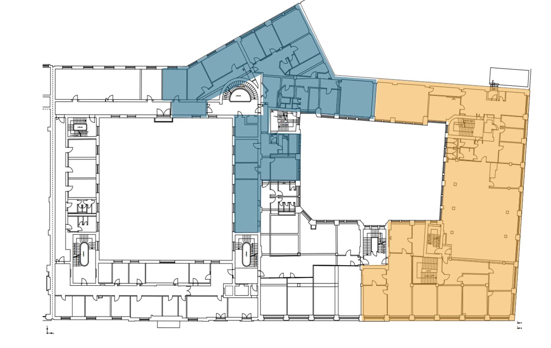
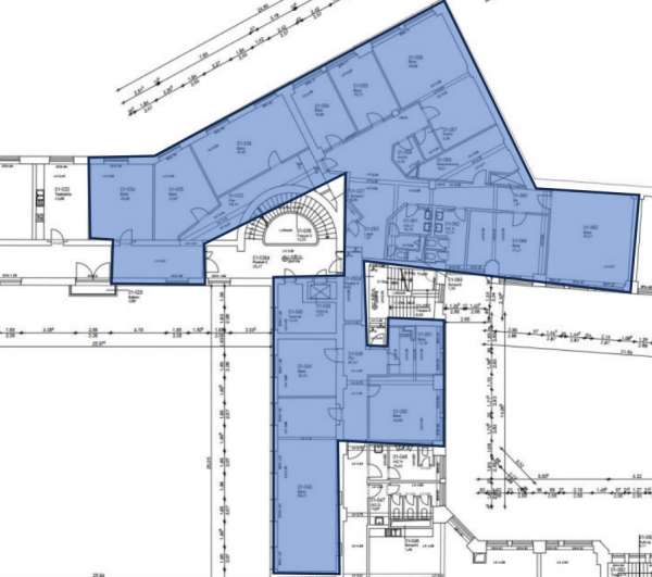
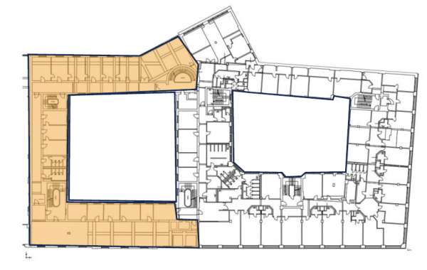
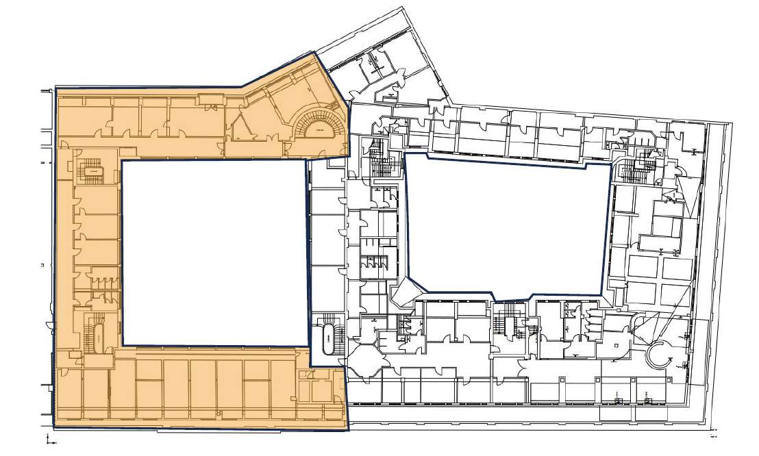
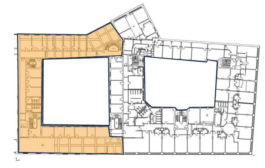
Fläche
bis 3.397 m2
Teilbar ab m2
ab 567 m2
Mietpreis ab m2
ab
Provision
Provisionsfrei
Ausstattung
- EDV: CAT 7, Glasfaser, Verkabelung nach Mieterwunsch
- KLIMATISIERUNG: außenliegender Sonnenschutz
- BESONDERHEITEN: Raumhöhe: ca. 3m, Barrierefreier Zugang, Fahrstühle vorhanden
- STELLPLÄTZE: vorhanden
Grundrisse
Anbindung
23 km
2,5 km
300 m
800 m
49 m
Karte