Arbeiten, wo Berlin pulsiert - Büroflächen in ikonischer Lage

Adresse
Monbijouplatz 8 - 10
10178 Berlin
Mitte
Verfügbar ab
Sofort
Fläche
bis 1.592 m2
Teilbar ab m2
ab 546 m2
Mietpreis ab m2
ab
Provision
Provisionsfrei
Ausstattung
- BALKON/TERRASSE: Balkone vorhanden
- STELLPLÄTZE: stehen in der TG zur Anmietung zur Verfügung.
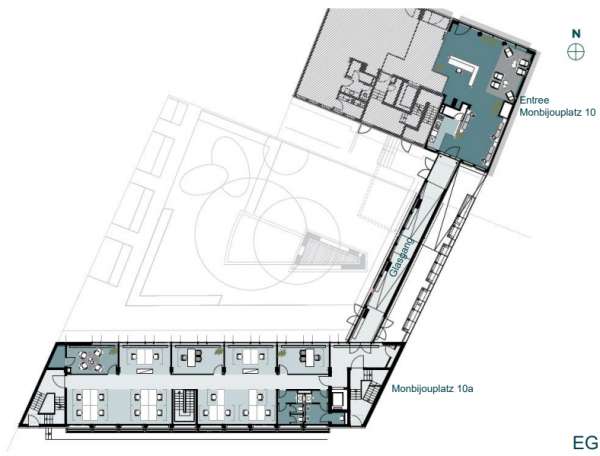
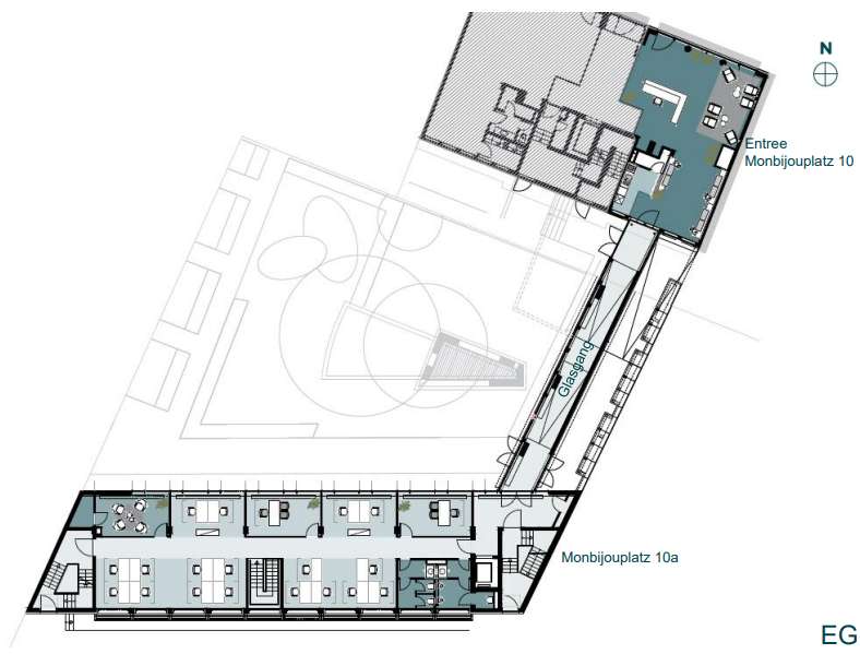
Grundrisse
Anbindung
270 m
550 m
1 km
2,3 km
23,2 km
Karte