Flexibel. Vernetzt. Zukunftsorientiert – Ihr neuer Standort im WORKHUB

Adresse
Workhub 1
Konrad-Zuse-Ring 11
14469 Potsdam
Potsdam Nord
Verfügbar ab
Sofort
Fläche
bis 844 m2
Teilbar ab m2
ab 357 m2
Mietpreis ab m2
ab
Provision
Provisionsfrei
Ausstattung
- KLIMATISIERUNG: Klimatisierung vorhanden, außenliegender Sonnenschutz
- BALKON/TERRASSE: Dachterrasse und begrünte Außenanlagen
- BARRIEREFREIHEIT: ebenerdig und barrierefrei erschlossen, Aufzüge in jede Mieteinheit, barrierefreies WC im EG
- EDV: Glasfaseranschluss
- BESONDERHEITEN: Serviceleistungen via Co-Working-Space
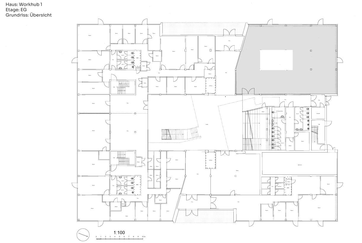
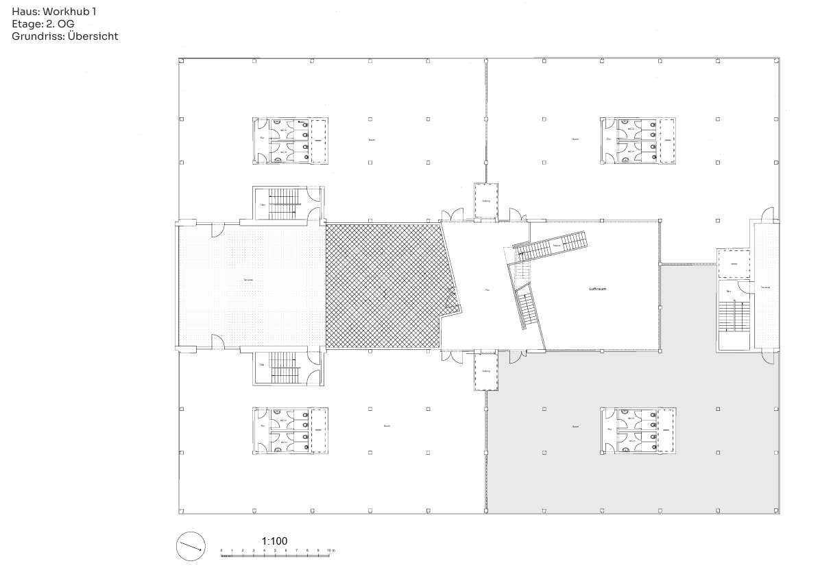
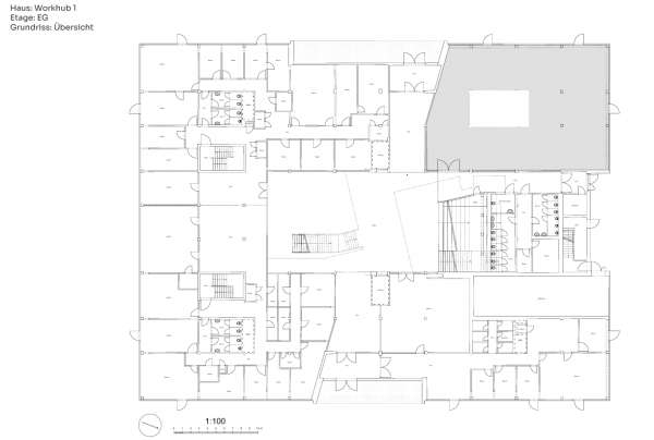
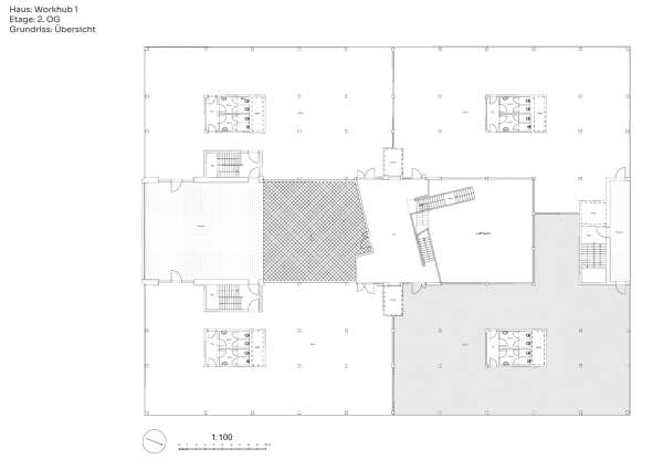
Grundrisse
Anbindung
230 m
500 m
Karte
Ansprechpartner
Maximilian Sadowski
Jr. Real Estate Consultant
Tel.: +49 (0)30 600 31 55 - 01
E-Mail.:
