Arbeiten mit Stil – Historisches Bürohaus im Herzen von Berlin-Mitte

Adresse
Reinhardtstraße 33
10117 Berlin
Mitte
Verfügbar ab
Sofort
Fläche
bis 399 m2
Teilbar ab m2
ab 399 m2
Mietpreis ab m2
ab
Provision
Provisionsfrei
Ausstattung
- EDV: Glasfaser
- BESONDERHEITEN: Duschen verhanden
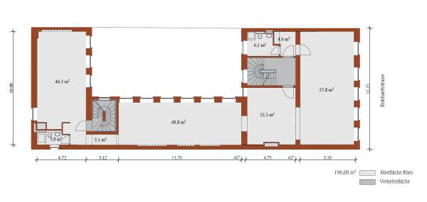
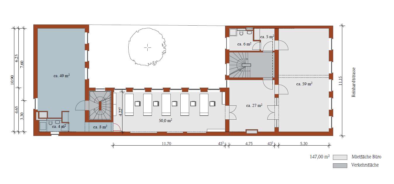
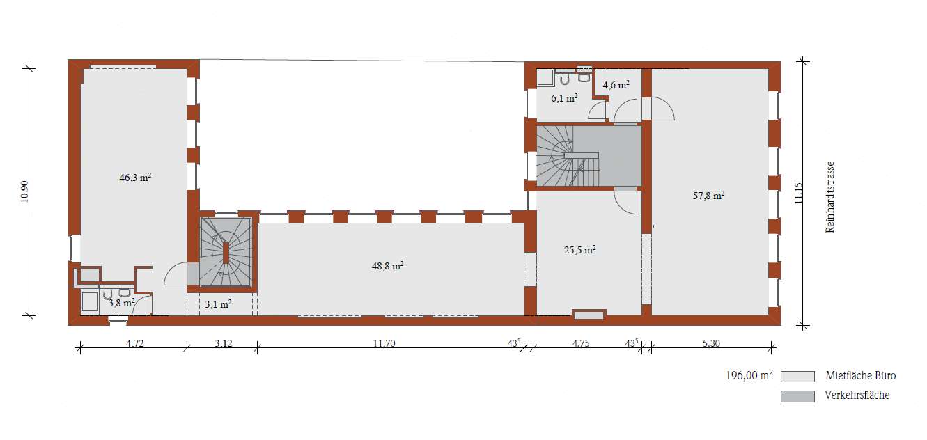
Grundrisse
Anbindung
500 m
500 m
500 m
500 m
750 m
25,7 km
Karte