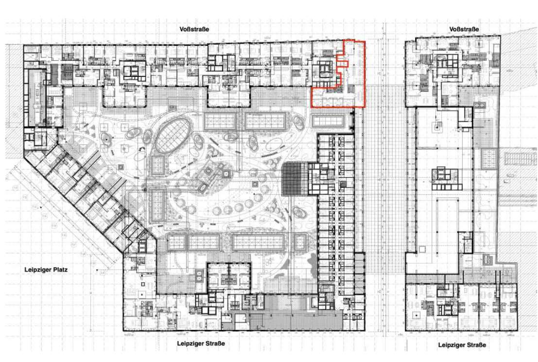
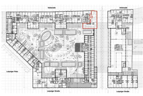
Das Voßpalais bietet moderne Büros in historischer Kulisse – zentral, repräsentativ und inspirierend

Adresse
Leipziger Platz Quartier
Voßstraße 27
10117 Berlin
Mitte
Verfügbar ab
Sofort
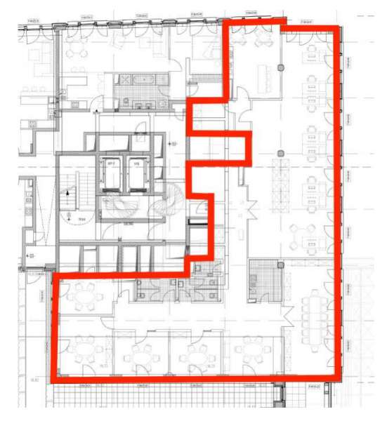
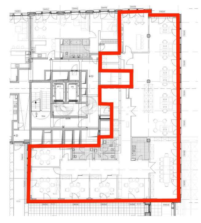
Fläche
bis 400 m2
Teilbar ab m2
ab 400 m2
Mietpreis ab m2
ab
Provision
Provisionsfrei
Ausstattung
- STELLPLÄTZE: in Tiefgarage anmietbar
Grundrisse
Anbindung
140 m
300 m
200 m
300 m
300 m
300 m
26 km
Karte