RASMO - Revitalisierung trifft Moderne

Adresse
RASMO
Erasmusstraße 14
10553 Berlin
Mitte
Verfügbar ab
Sofort
Fläche
bis 3.434 m2
Teilbar ab m2
ab 450 m2
Mietpreis ab m2
ab
Provision
Provisionsfrei
Ausstattung
- ZERTIFIZIERUNG: DGNB Gold, EU-Taxonomie-konform angestrebt, KfW-40-Standart
- STELLPLÄTZE: 23 Tiefgaragenstellplätze mit E-Ladefunktion sowie ausreichend Fahrradstellplätze vorhanden
- HEIZUNGSART: Wärmepumpen, PV und Betonkerntemperierung, vollautomatischer Sonnenschutzsteuerung sowie fossilfreie Beheizung mittels Erdwärme
- KLIMATISIERUNG: Co2-neutrale Gebäudekühlung
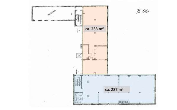
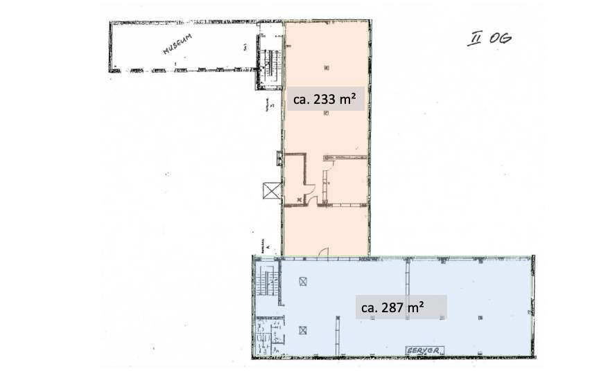
Grundrisse
Anbindung
230 m
1,1 km
1,2 km
2,7 km
2,7 km
33 km
Karte