Vielfältiger Büro- und Industriekomplex an der Spree: Moderne Architektur und flexible Raumgestaltung

Adresse
SHED LOFT
Sonnenallee 221
12059 Berlin
Neukölln
Verfügbar ab
Sofort
Fläche
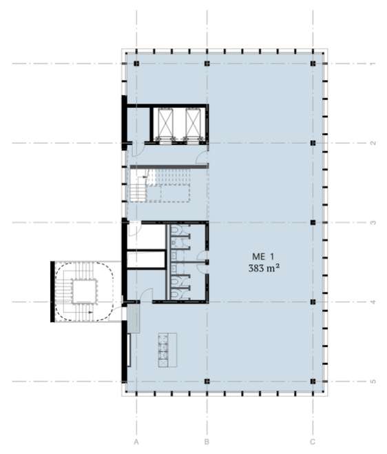
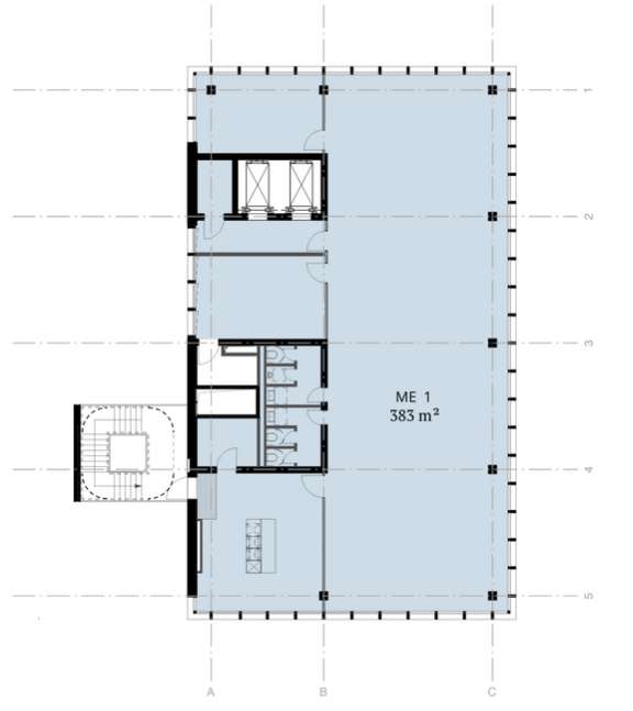
bis 1.525 m2
Teilbar ab m2
ab 384 m2
Mietpreis ab m2
ab
Provision
Provisionsfrei
Ausstattung
- ZERTIFIZIERUNG: LEED Gold Zertifizierung und ESG-Standard
- KLIMATISIERUNG: Außenliegender Sonnenschutz automatisch betrieben
- BESONDERHEITEN: Durchschnittliche Raumhöhe von 3,20m, Raumhohe Fenster, Deckentraglast von max. 500kg/m²
- EDV: High-Speed Internetverbindung im gesamten Gebäude
- STELLPLÄTZE: Ausreichend Platz im Fahrradraum und E-Ladestationen in der SHED Tiefgarage
Grundrisse
Anbindung
190 m
1,3 km
4,2 km
4,2 km
19,7 km
Karte