Stilvolle Remise von 1910 – modernisiert und repräsentativ als einzigartiger Gewerbestandort

Adresse
Remise
Chausseestraße 103
10115 Berlin
Mitte
Verfügbar ab
Sofort
Fläche
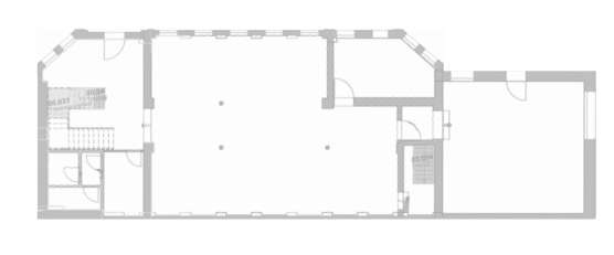
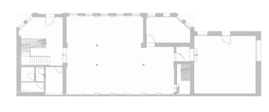
bis 406 m2
Teilbar ab m2
ab 406 m2
Mietpreis ab m2
ab
Provision
Provisionsfrei
Ausstattung
- BALKON/TERRASSE: 34 m² im 1.OG
- KELLER/LAGER: Lagerflächen vorhanden
- BESONDERHEITEN: Deckenhöhe: ca. 3,30 bis 3,80 m
- EDV: Glasfaserverkabelung vorhanden, Bodentanks
Grundrisse
Anbindung
550 m
80 m
1,2 km
1,2 km
27 km
Karte