Attraktive Büroflächen im Zentrum Berlins: Flexible Nutzung und hochwertige Ausstattung

Adresse
Behrenstraße 31
10117 Berlin
Mitte
Verfügbar ab
Sofort
Fläche
bis 9.756 m2
Teilbar ab m2
ab 547 m2
Mietpreis ab m2
ab
Provision
Provisionsfrei
Ausstattung
- KLIMATISIERUNG: außenliegende Sonnenschutzsysteme, Kühldecke
- BESONDERHEITEN: Deckenhöhe 2,50 – 3,20 m
- EDV: Hohlraumböden und Bodentanks
- STELLPLÄTZE: Anmietung von Stellplätzen möglich
- INTERNETPROVIDER: Colt, Telekom
- BALKON/TERRASSE
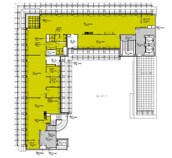
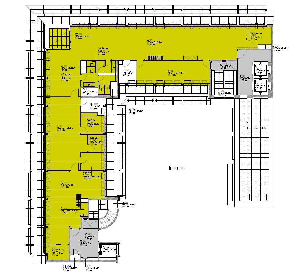
Grundrisse
Anbindung
550 m
600 m
600 m
600 m
1,6 km
24,9 km
Karte