Zurück

Gewerbelofts mit historischem Charme


Adresse
Treptown - Haus C
Am Treptower Park 28 - 30
12435 Berlin
Treptow-Köpenick

Verfügbar ab
Sofort


Fläche
bis 5.364 m2

Teilbar ab m2
ab 567 m2


Mietpreis ab m2
ab 21,00 €

Provision
Provisionsfrei


Ausstattung

  • STELLPLÄTZE: Stehen zur Anmietung zur Verfügung, Fahrradstellplätze verfügbar
  • BESONDERHEITEN: Deckenhöhe bis 4,40 m
  • KELLER/LAGER: vorhanden

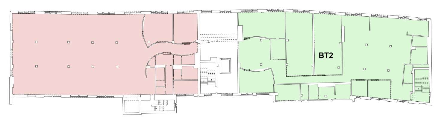
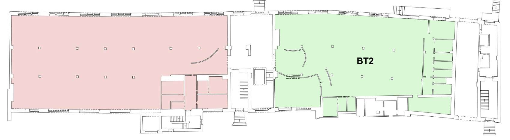
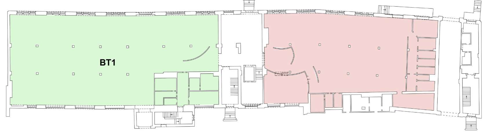
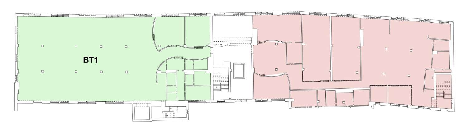
Grundrisse


Anbindung

S-Bahn
850 m
U-Bahn
2,1 km
Fernverkehr
6,8 km
Flughafen-BER
19,2 km
Bus
110 m

Karte

Ansprechpartner

Isabella Kossoi

Tel.: +49 (0)30 600 31 55 - 01
E-Mail.:

Exposé anfragen

Wir speichern Ihre Daten zur Bearbeitung Ihrer Anfrage. Weitere Informationen erhalten Sie in unserer Datenschutzerklärung.



In der Nähe