Zurück

Attraktive, flexible Gewerbeflächen in gut angebundener Lage

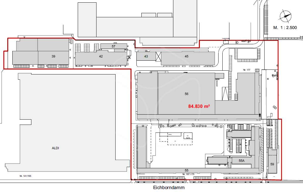
EICHBORN-HÖFE - Gebäude 55

Adresse
EICHBORN-HÖFE - Gebäude 55
Eichborndamm 165-179
13404 Berlin
Reinickendorf

Verfügbar ab
Sofort


Fläche
bis 2.917 m2

Teilbar ab m2
ab 358 m2


Mietpreis ab m2
ab 11,90 €

Provision
Provisionsfrei


Ausstattung

  • EDV: Glasfaseranschluss
  • STELLPLÄTZE: vorhanden

Grundrisse


Anbindung

Bus
50 m
S-Bahn
750 m
U-Bahn
550 m
Flughafen-BER
33,8 km

Karte

Ansprechpartner

Isabella Kossoi

Tel.: +49 (0)30 600 31 55 - 01
E-Mail.:

Exposé anfragen

Wir speichern Ihre Daten zur Bearbeitung Ihrer Anfrage. Weitere Informationen erhalten Sie in unserer Datenschutzerklärung.



In der Nähe