Stylischer Altbau, moderne Büros, flexibles Design - alles für die perfekte Arbeitsatmosphäre!

Adresse
Adalbertstraße 8
10999 Berlin
Friedrichshain-Kreuzberg
Verfügbar ab
Sofort
Fläche
bis 1.460 m2
Teilbar ab m2
ab 159 m2
Mietpreis ab m2
ab
Provision
Provisionsfrei
Ausstattung
- STELLPLÄTZE: Außenstellplätze nach Verfügbarkeit Fahrradstellplätze
- EDV: High-Speed Internetmöglich
- BESONDERHEITEN: Lastenaufzug vorhanden, Wachschutz
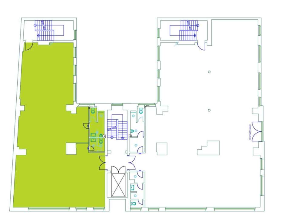
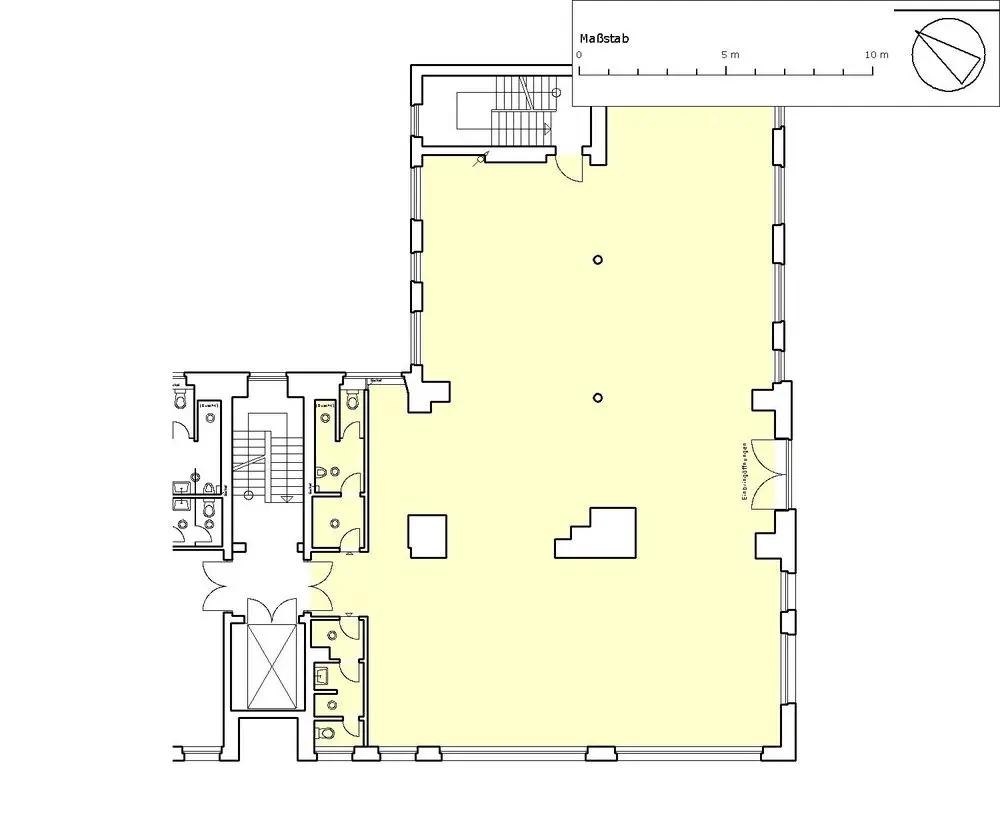
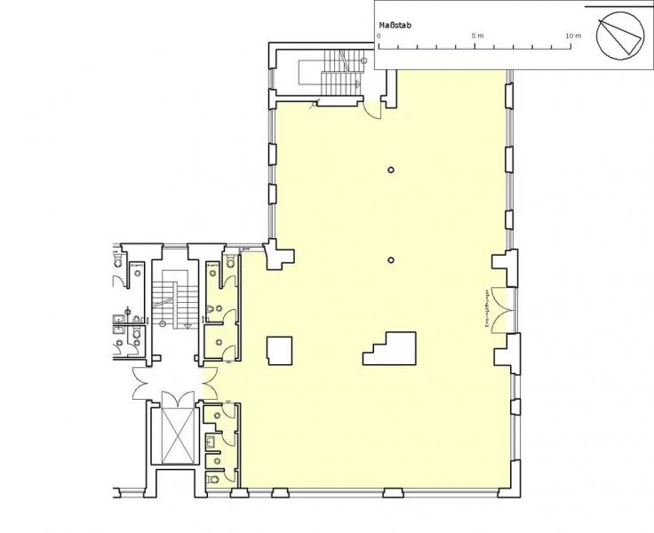
Grundrisse
Anbindung
21,3 km
170 m
2,1 km
2,1 km
Karte