Neubau direkt an der Spree: Flexible Büroflächen mit Top-Ausstattung und herrlichem Licht

Adresse
Gebauer Wateryards
Franklinstraße 9 - 15a
10587 Berlin
Charlottenburg-Wilmersdorf
Verfügbar ab
4. Quartal,
2025
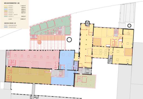
Fläche
bis 7.728 m2
Teilbar ab m2
ab 300 m2
Mietpreis ab m2
ab
Provision
Provisionsfrei
Ausstattung
- BALKON/TERRASSE: attraktive Balkone u. moderne Dachterrasse mit sensationellem Blick über die Spree
- EDV: EDV - Verkabelung vorhanden
- KLIMATISIERUNG: Temperierung der Luft über Kälteerzeuger
- ZERTIFIZIERUNG: BREEAM-Zertifizierung „Exzellent“ angestrebt
- ESG|NACHHALTIGKEIT: Photovoltaik, nachhaltige Holzbauweise
- BESONDERHEITEN: Personenaufzug
- WASSERBLICK
Grundrisse
Anbindung
300 m
1,1 km
1,3 km
29,4 km
2,5 km
3,5 km
2,5 km
Karte