Historischer Charme trifft moderne Büroausstattung – Flexible Flächen für individuelle Konzepte

Adresse
Zickenhöfe
Boppstraße 7
10967 Berlin
Friedrichshain-Kreuzberg
Verfügbar ab
Sofort
Fläche
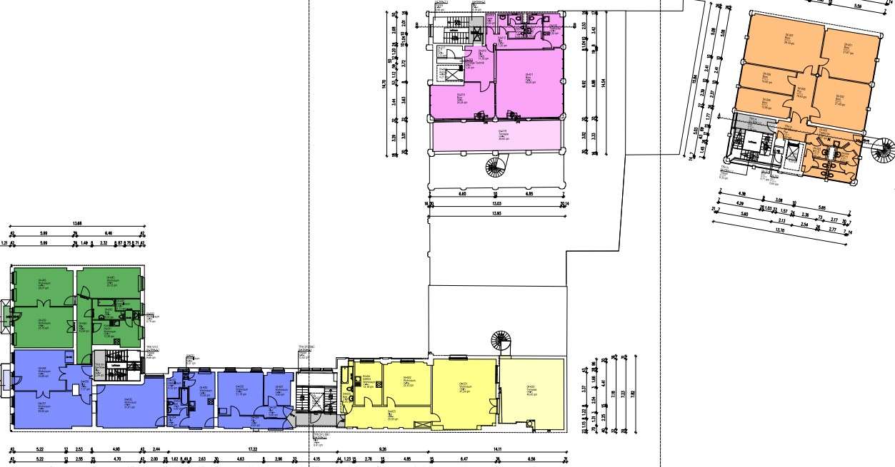
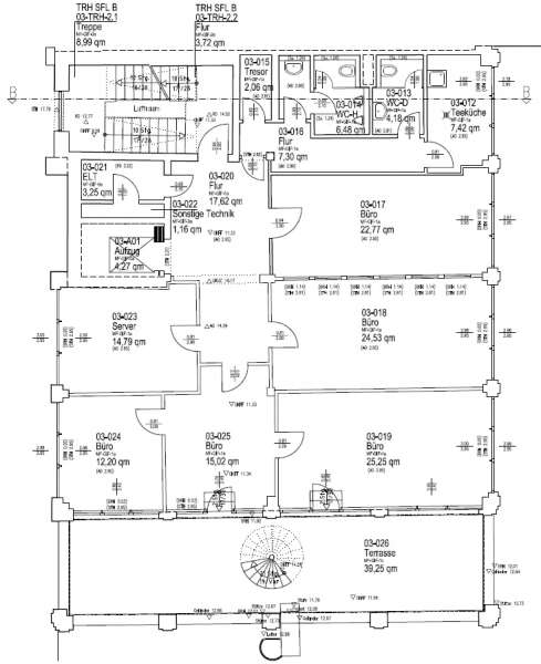
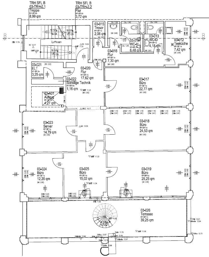
bis 2.535 m2
Teilbar ab m2
ab 347 m2
Mietpreis ab m2
ab
Provision
Provisionsfrei
Ausstattung
- BALKON/TERRASSE
- STELLPLÄTZE: 15 Stellplätze verfügbar, Parkdeck mit Schranke ca. 100 € / TG ca. 120 €
- vorhanden
- KLIMATISIERUNG: außenliegender Sonnenschutz
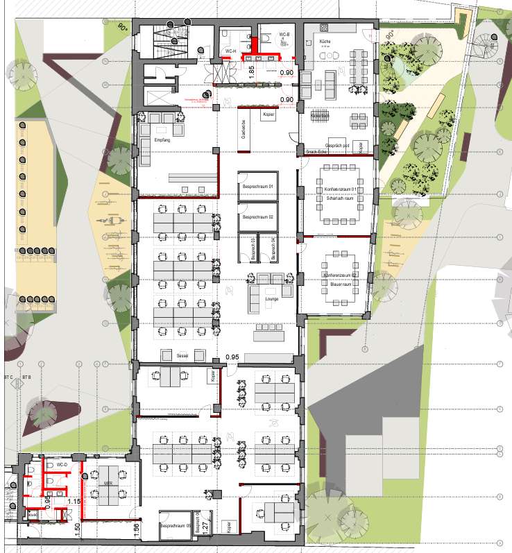
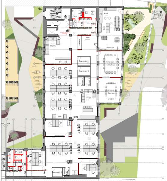
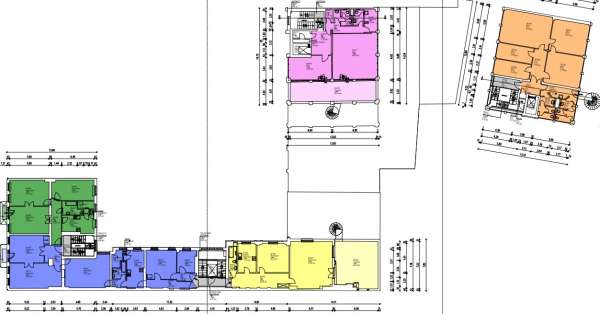
Grundrisse
Anbindung
280 m
270 m
2,6 km
2,6 km
17,9 km
Karte
Ansprechpartner
Maximilian Sadowski
Jr. Real Estate Consultant
Tel.: +49 (0)30 600 31 55 - 01
E-Mail.:
