Attraktive Loftflächen im Gebäudekomplex in Friedrichshain-Kreuzberg.

Adresse
LUX Tower
Rotherstraße 8 -11
10245 Berlin
Friedrichshain-Kreuzberg
Verfügbar ab
Sofort
Fläche
bis 13.092 m2
Teilbar ab m2
ab 561 m2
Mietpreis ab m2
ab
Provision
Provisionsfrei
Ausstattung
- STELLPLÄTZE: 33 Stück + E-Ladestationen, 160 Fahrradstellplätze
- BESONDERHEITEN: Terrasse vorhanden und exklusiver Innenhof, Raumhöhe 3,5 Meter
- ZERTIFIZIERUNG: BREEAM, WiredScore
- EDV: Hohlraumböden für EDV, Glasfaser
- WASSERBLICK
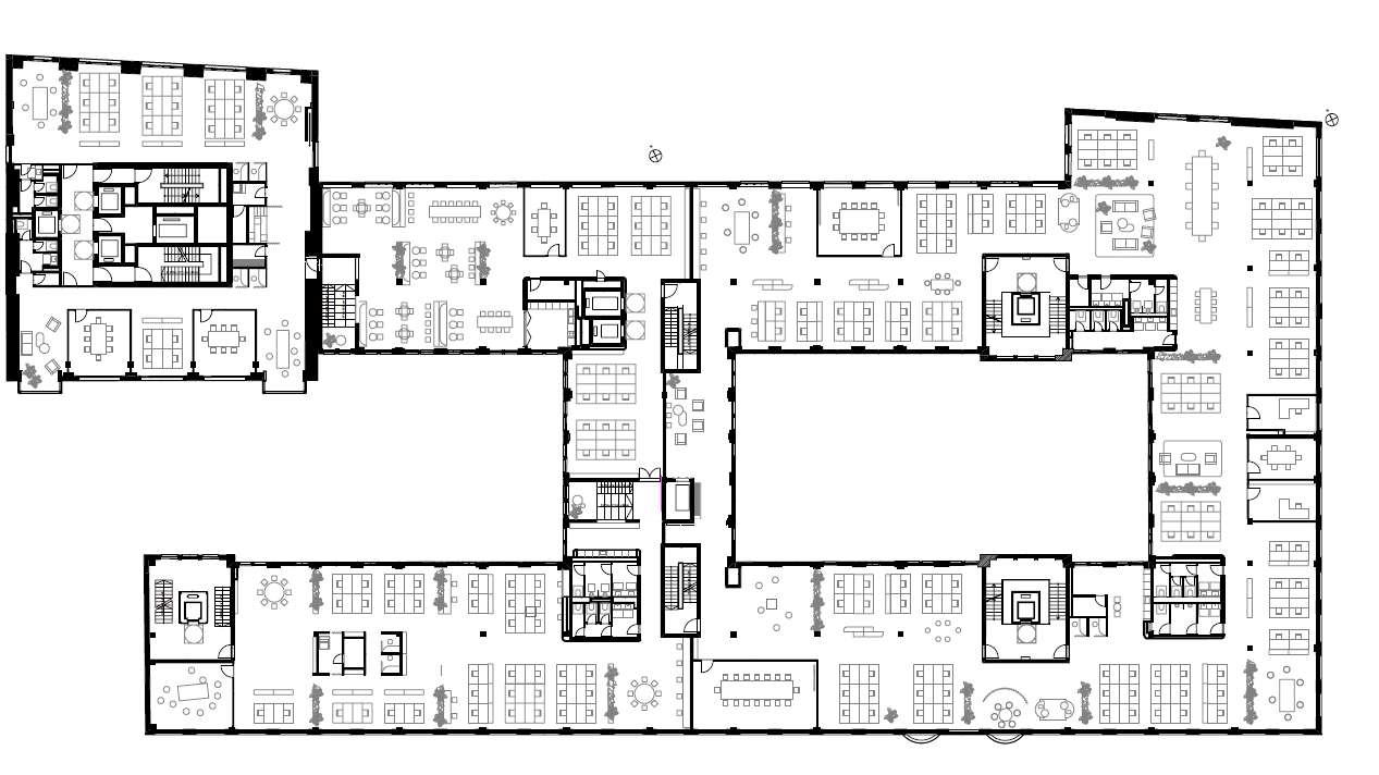
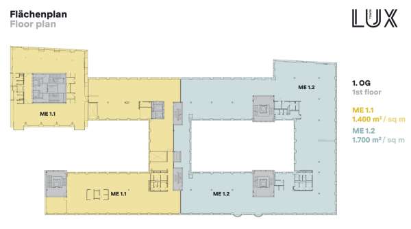
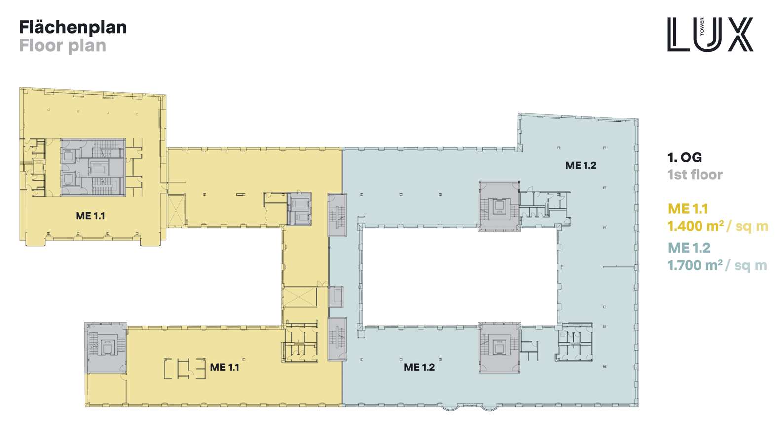
Grundrisse
Anbindung
23,9 km
1,5 km
350 m
350 m
Karte