WIRE - Büros mit Weitblick mitten in Berlin

Adresse
WIRE
Schützenstraße 8
10117 Berlin
Mitte
Verfügbar ab
Sofort
Fläche
bis 849 m2
Teilbar ab m2
ab 412 m2
Mietpreis ab m2
ab
Provision
Provisionsfrei
Ausstattung
- STELLPLÄTZE: 16 TG-Stellplätze
- BESONDERHEITEN: Raumhöhe 2,5 m - 7 m Terrasse im 6. OG
- EDV: Doppel- bzw. Hohlraumböden für die EDV-Verkabelung
- BELEUCHTUNG: arbeitsplatzgerechte Beleuchtungssysteme
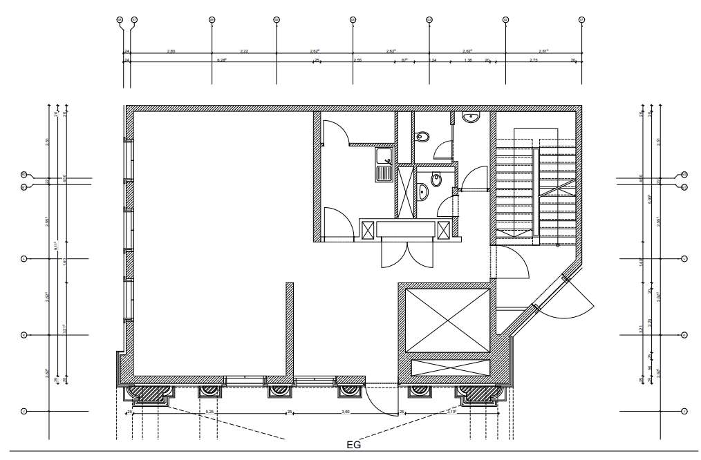
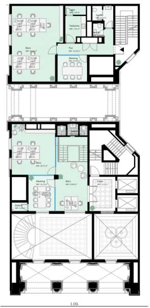
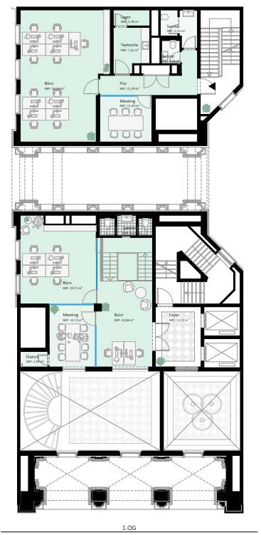
Grundrisse
Anbindung
400 m
1,2 km
2,9 km
25,7 km
1,2 km
260 m
Karte