Hochmoderne Büro- und Laborräume für Hochschule und Life Sciences

Adresse
Englerallee 40
14195 Berlin
Steglitz-Zehlendorf
Verfügbar ab
Sofort
Fläche
bis 942 m2
Teilbar ab m2
ab 442 m2
Mietpreis ab m2
ab
Provision
Provisionsfrei
Ausstattung
- STELLPLÄTZE: TG-Stellplätze in ausreichender Anzahl vorhanden
- EDV: Hohlraumböden mit Bodentanks für die EDV
- KLIMATISIERUNG: elektronischem Sonnenschutz
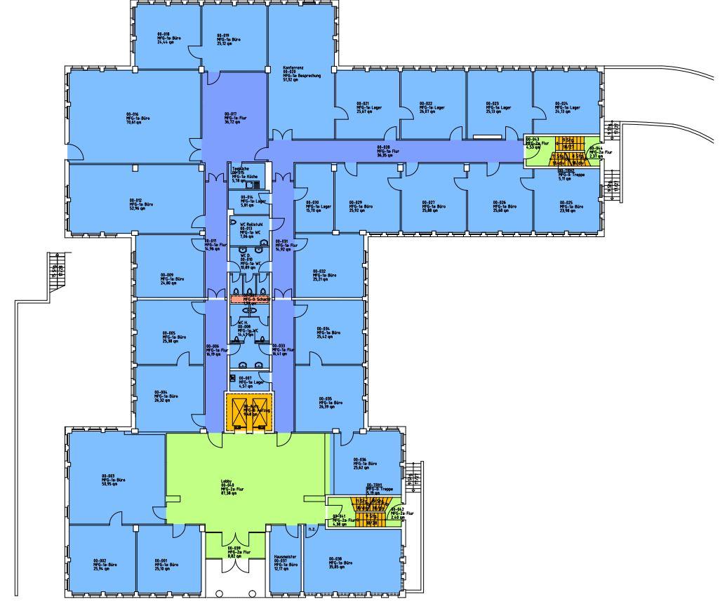
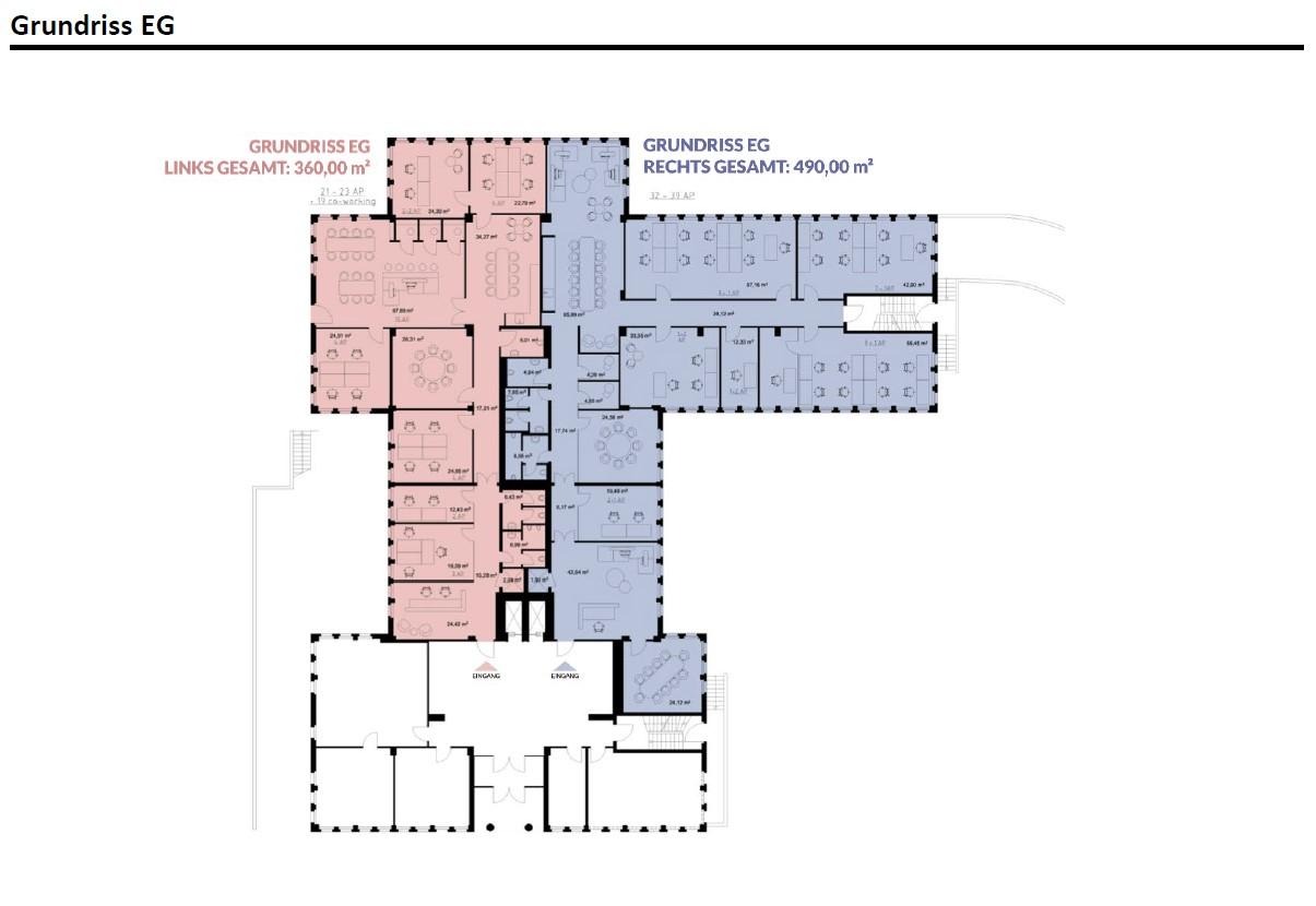
Grundrisse
Anbindung
27,9 km
850 m
1,7 km
5,4 km
50 m
Karte