Quadratum Potsdam: Innovative Büroflächen im Potsdam Science Park fördern Vernetzung von Forschung, Technologie und Wirtschaft

Adresse
Quadratum Potsdam Bauteil A
Am Mühlenberg 5
14476 Potsdam
Potsdam Nord
Verfügbar ab
4. Quartal,
2027
Fläche
bis 6.000 m2
Teilbar ab m2
ab 3.000 m2
Mietpreis ab m2
ab
Provision
Provisionsfrei
Ausstattung
- STELLPLÄTZE: 60 Tiefgaragenstellplätze 8 E-Ladestationen 152 Fahrradstellplätze
- ZERTIFIZIERUNG: DGNB-Gold
- BALKON/TERRASSE: Dachterrasse, begrünte Innenhöfe
- KLIMATISIERUNG: mechanische Be- und Entlüftung, Heiz- und Kühldeckensegel, außenliegender Sonnenschutz
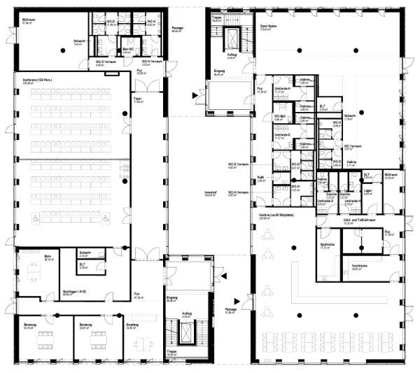
- BESONDERHEITEN: Kantine, Konferenzräume und Duschen im Erdgeschoss
- ESG|NACHHALTIGKEIT: begrünte Dächer, Heizung über Geothermie
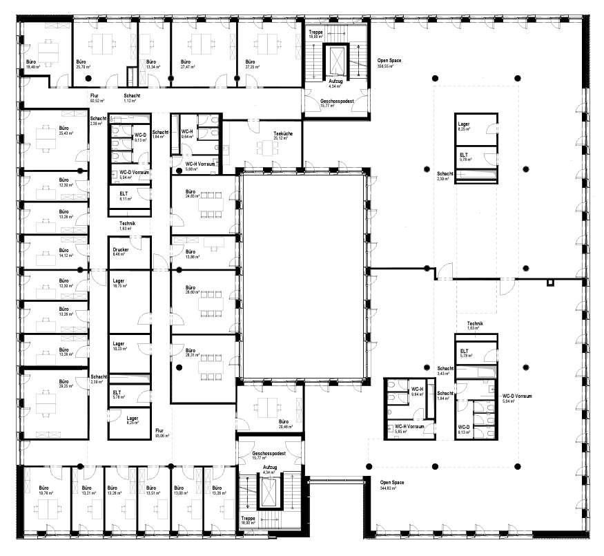
Grundrisse
Anbindung
270 m
230 m
53,7 km
Karte
Ansprechpartner
Maximilian Sadowski
Jr. Real Estate Consultant
Tel.: +49 (0)30 600 31 55 - 01
E-Mail.:
