Zurück

Arbeiten mit Stil: Repräsentative Büros mit historischer Fassade und modernem Komfort


Adresse
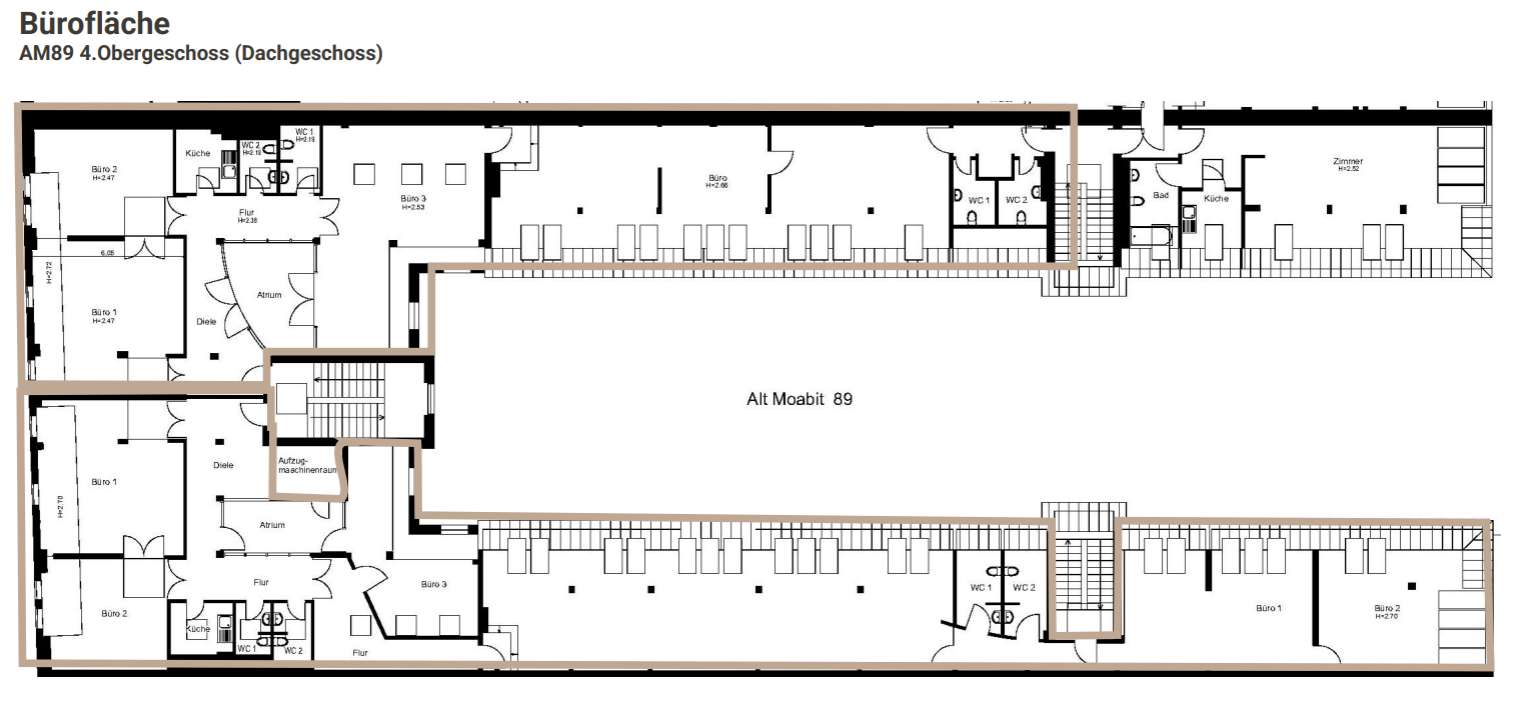
Alt-Moabit 89 - 90
10559 Berlin
Mitte

Verfügbar ab
Sofort


Fläche
bis 1.697 m2

Teilbar ab m2
ab 581 m2


Mietpreis ab m2
ab 19,00 €

Provision
Provisionsfrei


Ausstattung

  • EDV: Brüstungskanäle, Glasfaserverkabelung möglich
  • BESONDERHEITEN: Deckenhöhe 3,80 - 4,20 m, Aufzug vorhanden
  • ZERTIFIZIERUNG: "BREEAM" angestrebt
  • STELLPLÄTZE: vorhanden
  • KLIMATISIERUNG: Sonnenschutz innenliegend, Klimatisierung im DG möglich

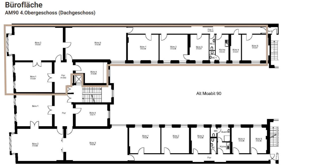
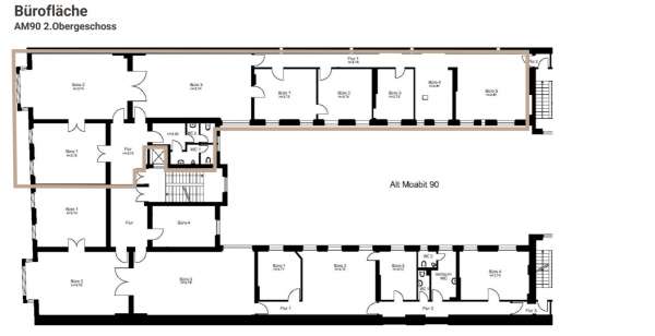
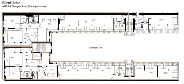
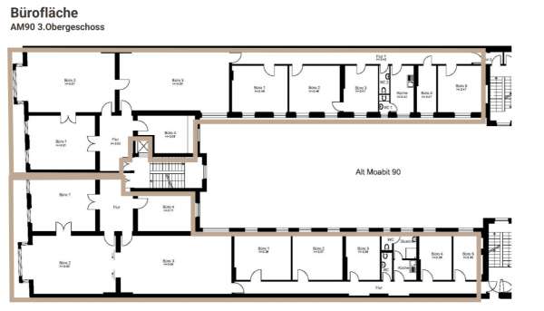
Grundrisse


Anbindung

S-Bahn
800 m
U-Bahn
250 m
Regionalverkehr
1,7 km
Bus
240 m
Tram
400 m
Flughafen-Express
1,7 km
Flughafen-BER
29,6 km

Karte

Ansprechpartner

Renée Neumann
Real Estate Consultant

Tel.: +49 (0)30 600 31 55 - 01
E-Mail.:

Exposé anfragen

Wir speichern Ihre Daten zur Bearbeitung Ihrer Anfrage. Weitere Informationen erhalten Sie in unserer Datenschutzerklärung.



In der Nähe