Effizientes Arbeiten: Höchster Komfort dank intelligenter Ausstattung

Adresse
Alex
Bornitzstraße 67 + 69 + 71
10365 Berlin
Lichtenberg
Verfügbar ab
Sofort
Fläche
bis 9.793 m2
Teilbar ab m2
ab 518 m2
Mietpreis ab m2
ab
Provision
Provisionsfrei
Ausstattung
- STELLPLÄTZE: 25 Stück in TG, davon 1–5 Elektro-Stellplätze + Fahrradstellplätze
- BESONDERHEITEN: Raumhöhe 3,05 m, akustisch wirksamer Teppich
- KLIMATISIERUNG: außenliegender Sonnenschutz + Be- und Entlüftung
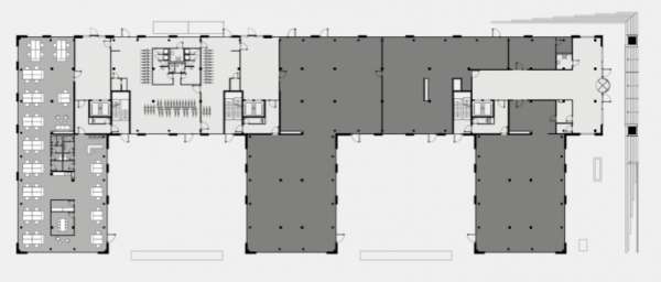
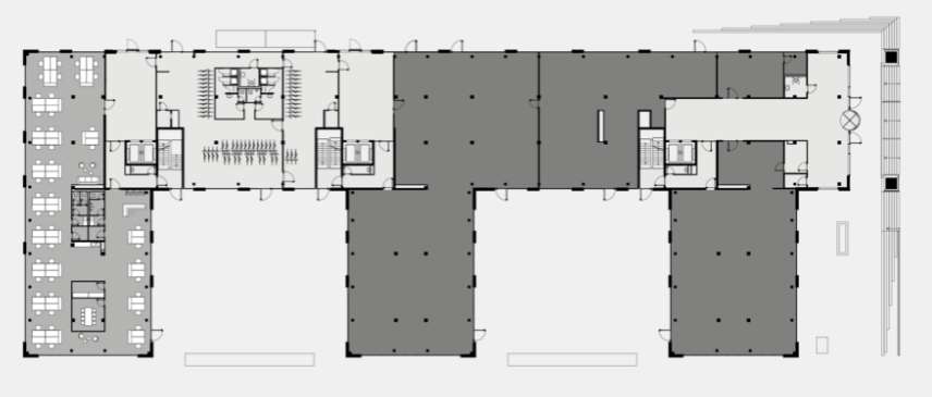
Grundrisse
Anbindung
1,4 km
1,2 km
1,6 km
1,6 km
2,9 km
22,7 km
Karte